EasyManua.ls Logo

Doosan DP158LCS - General Information; High Sulfur Content in Diesel Fuel

Doosan DP158LCS
262 pages
Print Icon
To Next Page IconTo Next Page
To Next Page IconTo Next Page
To Previous Page IconTo Previous Page
To Previous Page IconTo Previous Page
Loading...
8. Fuel system
123
General information
General Information
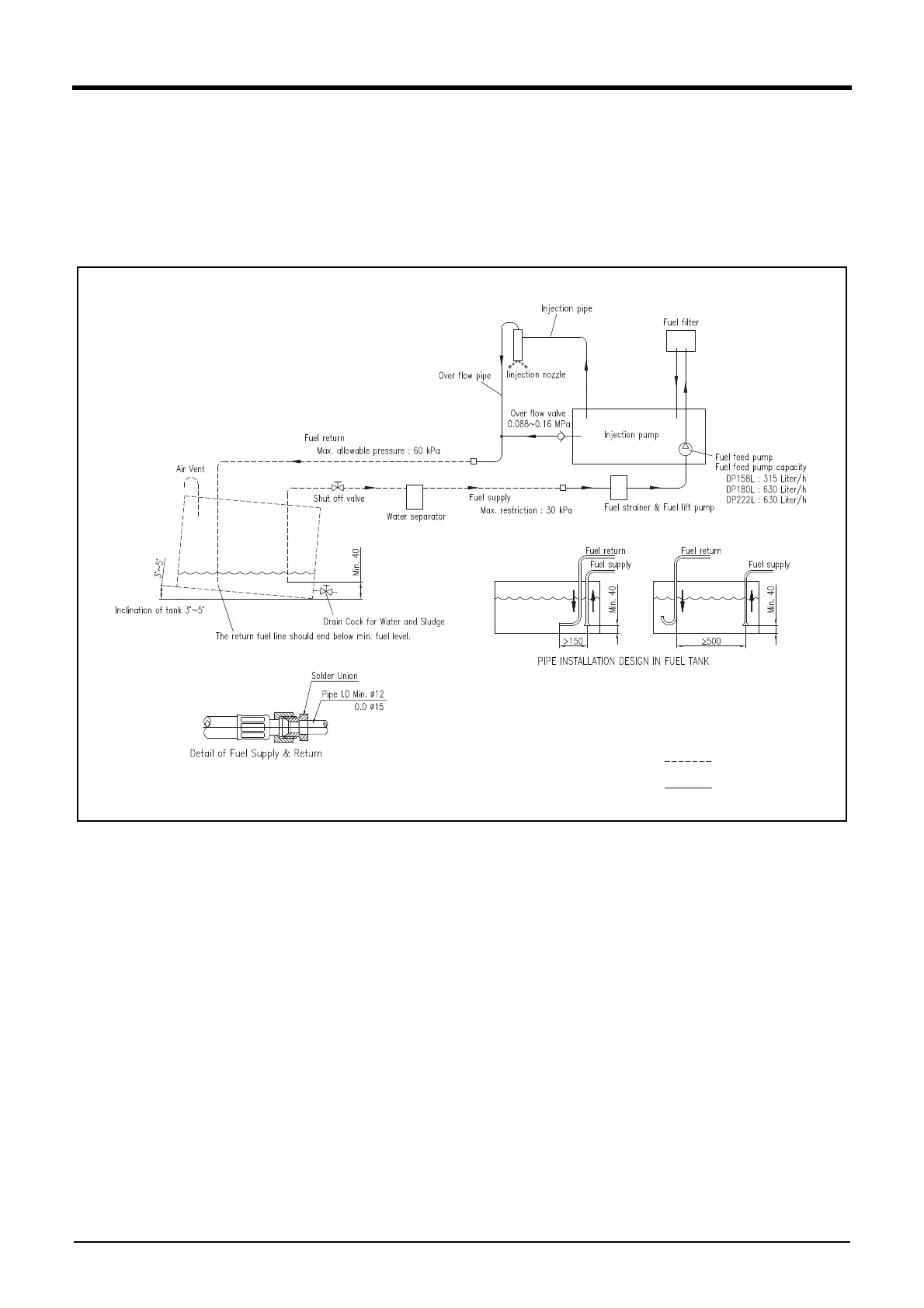
The fuel is supplied by the fuel delivery pump through fuel
filter to the fuel injection pump which delivers the fuel to the
fuel injection nozzle.
The fuel is injected to the cylinder through the nozzle assem-
bled to the fuel injection nozzle holder of the cylinder head.
Over-supplied fuel returns to the fuel tank through the return
pipe.
DV2213102B
The fuel lines should have a sufficient inner diameter.
The fuel lines should be routed so that the fuel is not exces-
sively heated by the heat radiation from the engine.
The pipes should be laid as straight as possible without
sharp bends. Make sure the pipes are protected against
mechanical wear and well fastened to avoid vibrations.
It is important that there are no fuel leakages or air infiltration
neither on the suction or return line installation.
Therefore securely fasten all the connections of fuel line.
The return line back to the fuel tank must not be adjoin the
suction line.
In case of diesel fuel containing high water content due to
insufficient fuel quality, maintenance difficulty or environ-
mental adversity, an extra water separator with adequate
capacity must be installed as user supply scope.
High Sulfur content in diesel fuel
Doosan diesel engines can be operated with fuels Whose
sulfur content is max. 0.05wt%.
Fuels with a sulfur content of > 0.05wt% are not Permitted as
they result in increased corrosion and Hence greatly reduce
the service life of the engines.
The oil and oil filter change intervals must be halved If the
sulfur content is > 0.02wt%.
User Supply
Doosan Supply

Table of Contents

Related product manuals