EasyManua.ls Logo

Dovre 2000S - 3.1.3. Floor and Wall Protection

Dovre 2000S
24 pages
Print Icon
To Next Page IconTo Next Page
To Next Page IconTo Next Page
To Previous Page IconTo Previous Page
To Previous Page IconTo Previous Page
Loading...
2000 6 03.27817.100
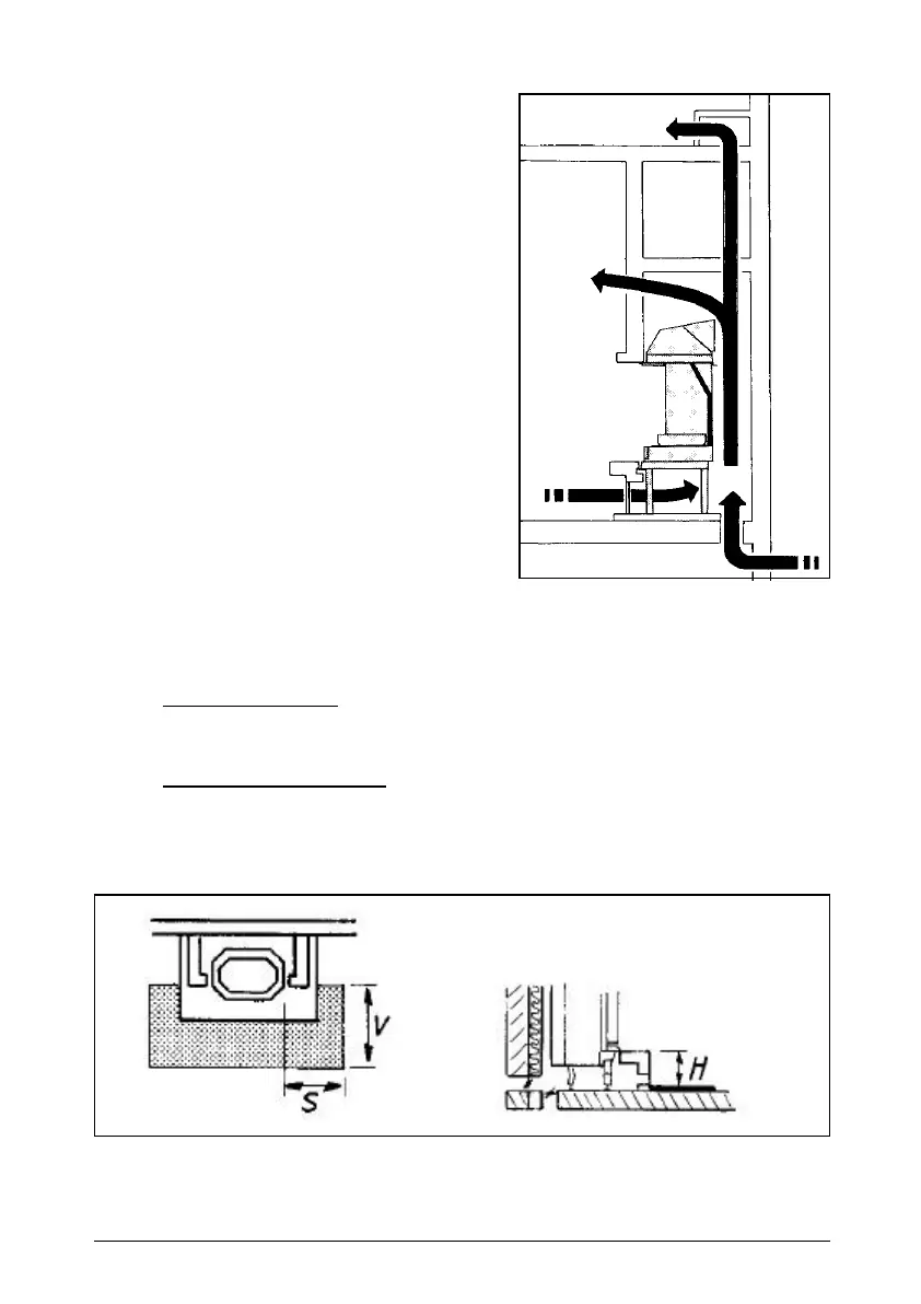
Convection air may be led to arrive from both
the room and outside (other room, cellar, exte-
rior) to the bottom side of the fireplace. In case
convection air is supplied (directly or indirectly)
from outside, it may also be useful as a supply
of fresh air for combustion.
At any rate, assure proper home air manage-
ment and sufficient air supply into the room.
Ensure not to use other air-consuming appli-
ances, such as heaters, cooking hoods, bath-
room ventilators, in the same room or in the
house while the stove is burning; or make sure
to have an extra ventilation grille installed for
these appliances.
3.1.3. Floor, walls
Combustible material must be sufficiently protected. The floor under the fireplace
and the walls around it must not contain electric wires.
The appliance shall be installed on floors with an adequate load-bearing capacity.
Under the appliance
Under the appliance, any combustible material must be removed or specially
shielded by means of a 6 cm concrete slab and 10 cm insulation.
Floor round the appliance
A floor made of combustible material must be properly shielded in the following
areas:
Front: height of the lower part of the fire chamber + 30 cm, but 60 cm at least.
Sides: height of the lower part of the fire chamber + 20 cm, but 40 cm at least.
V > H + 30 > 60
S > H + 20 > 40

Related product manuals