EasyManua.ls Logo

DR XD26 - Technical Reference and Warranty; Wiring Diagrams

DR XD26
44 pages
Print Icon
To Next Page IconTo Next Page
To Next Page IconTo Next Page
To Previous Page IconTo Previous Page
To Previous Page IconTo Previous Page
Loading...
42 DR
®
FIELD and BRUSH MOWER
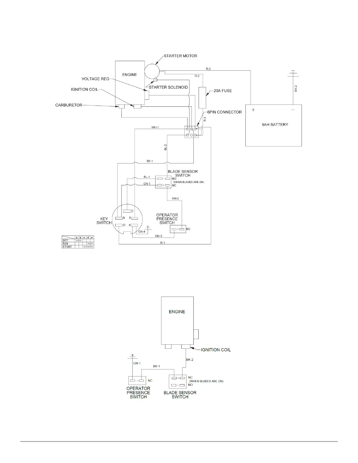
Wiring Diagram Kawasaki Engine (Electric Start)
Wiring Diagram Honda Engine (Manual Start)

Related product manuals