EasyManua.ls Logo

Drain Master S Series - Page 5

Default Icon
12 pages
Print Icon
To Next Page IconTo Next Page
To Next Page IconTo Next Page
To Previous Page IconTo Previous Page
To Previous Page IconTo Previous Page
Loading...
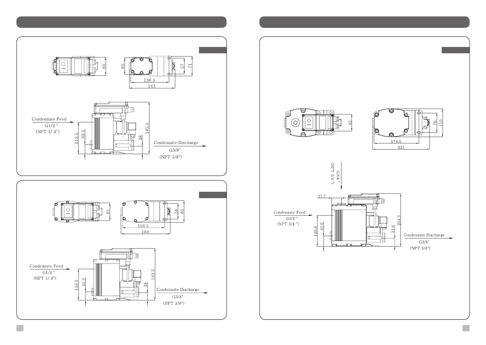
DIMENSION DIMENSION
DM-150HPDM-15HP
DM-50HP
8 9