EasyManua.ls Logo

DriSteem DK-12 - DRANE-KOOLER Piping Examples

DriSteem DK-12
16 pages
Print Icon
To Next Page IconTo Next Page
To Next Page IconTo Next Page
To Previous Page IconTo Previous Page
To Previous Page IconTo Previous Page
Loading...
Installation
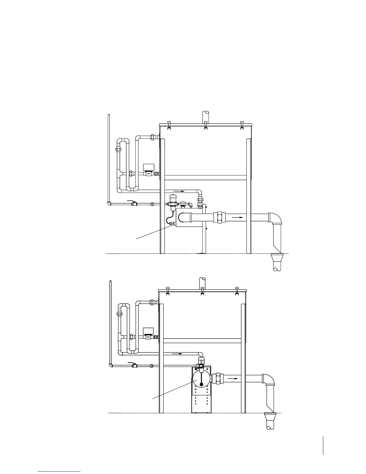
DRANE-KOOLER piping.
Installation:
Piping
Two examples showing the DRANE-KOOLER mounted directly underneath an evaporative humidifier
OM-1121
OM-1122
DRANE-KOOLER
DRANE-KOOLER
Pitch drain piping at least
1/8"/ft (1%) in direction of
arrows.
Pitch drain piping at least
1/8"/ft (1%) in direction of
arrows.
7