EasyManua.ls Logo

Drolet Adirondack - Typical Chimney Installations; Factory Built Chimney Examples

Drolet Adirondack
26 pages
Print Icon
To Next Page IconTo Next Page
To Next Page IconTo Next Page
To Previous Page IconTo Previous Page
To Previous Page IconTo Previous Page
Loading...
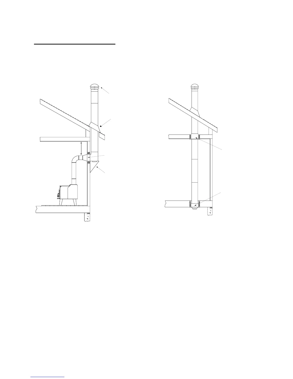
TYPICAL INSTALLATIONS
FACTORY BUILT CHIMNEY:
ROOF FLASHING
18" CLEARANCE
WALL SUPPORT
WALL RADIATION SHIELD
RAIN CAP
Wall installation
CEILING SUPPORT
RADIATION SHIEL
D
Vertical installation
14

Related product manuals