EasyManua.ls Logo

Dyness TX5K-HM - Page 4

Dyness TX5K-HM
16 pages
Print Icon
To Next Page IconTo Next Page
To Next Page IconTo Next Page
To Previous Page IconTo Previous Page
To Previous Page IconTo Previous Page
Loading...
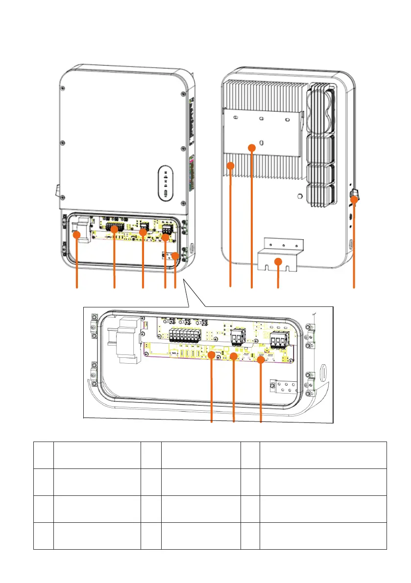
Product Overview
1. RSD Module 2.
PV Input Terminal
(PV+/PV-)
3. Battery Terminal(BAT+/BAT-)
4.
AC Output
TerminalL1/L2/N)
5. PE Terminal 6. Heatsink
7.
Wall Mounting
Plate
8. Back Support 9. DC Switch (PV Only)
10. GEN&DRY COM 11.
BMS&DI&EMS
COM
12. RJ 45
1 2 3 4 5
9
3
876
121110