EasyManua.ls Logo

Eagle T200 - Page 27

Eagle T200
27 pages
Print Icon
To Previous Page IconTo Previous Page
To Previous Page IconTo Previous Page
Loading...
- 27 -
N1
L11
L
N
QS 10A
QF2 1A
1
2
QF1 10A
R
N2
5
6
2009.11.23
110VAC
PE
M2 M3
U1 W1
U1
KM1
W1
U1 W1
M1
U1 W1
0.2KW
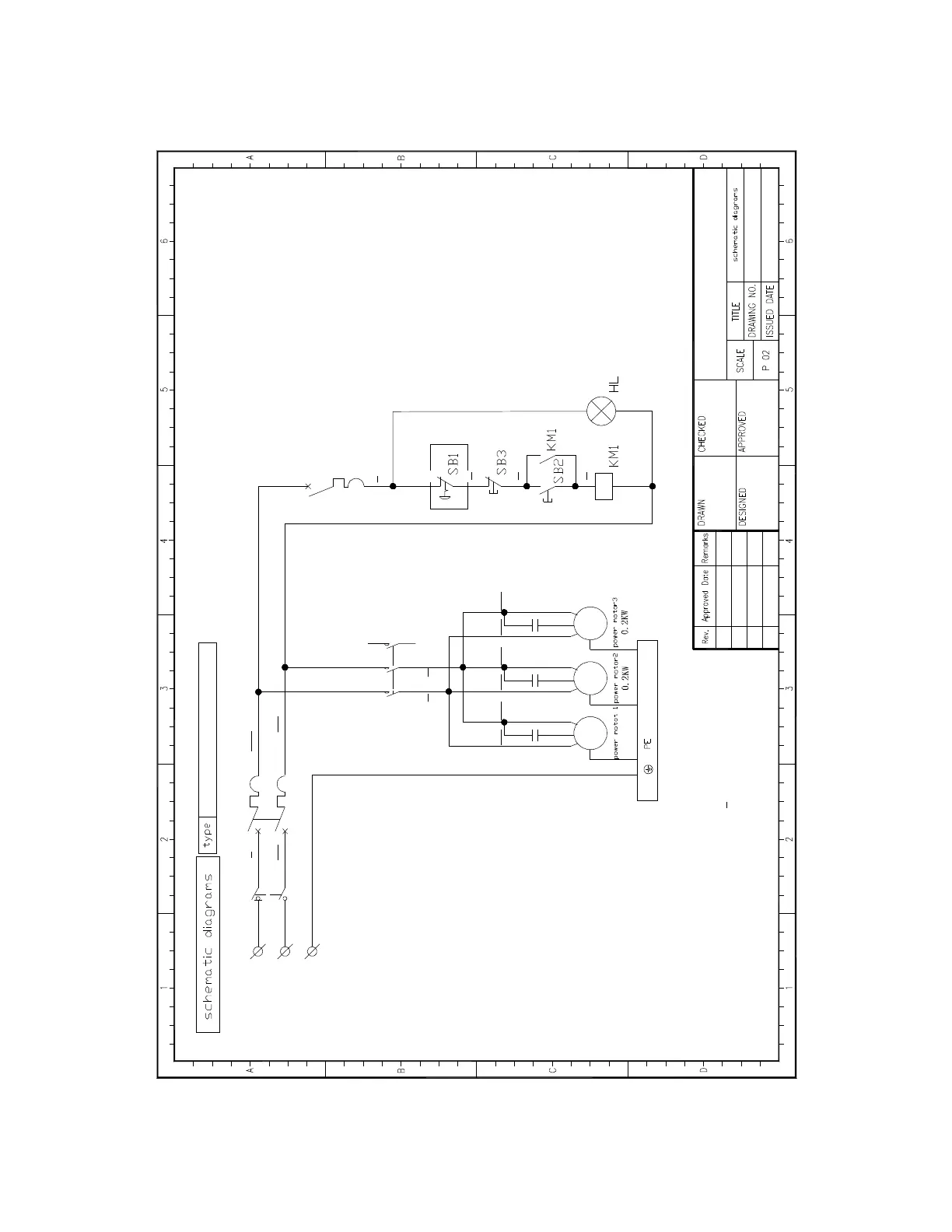
**The emergency stop
switch in the dotted line
box is optional, which
shall be specified in the
order
Notes:
1. The character with an underline (e.g.0) means the wiring number
of contact point (0);
2. SB1 is the emergency stop button; SB2 is the start button; SB3 is
the stop button
7. Electrical Scematics