EasyManua.ls Logo

EasyShed EF-D3008 - TEMPORARY & PERMANENT ANCHORING

EasyShed EF-D3008
24 pages
Print Icon
To Next Page IconTo Next Page
To Next Page IconTo Next Page
To Previous Page IconTo Previous Page
To Previous Page IconTo Previous Page
Loading...
TEMPORARY & PERMANENT ANCHORING
EasyShed
®

It is essential to firmly anchor immediately following installation,
otherwise there is a risk of damage to panels, property or persons resulting from
sudden wind gusts. Select a level site and proceed as follows:
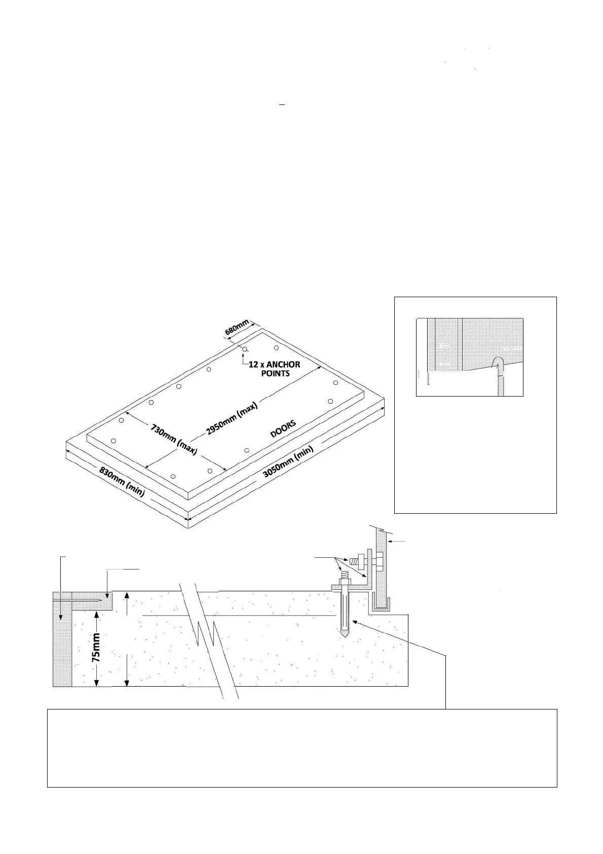
Garden sheds may be anchored to an approved existing concrete
slab using the concrete fixing set (anchor brackets and bolts purchased separately)

(r
c
mm
n

)
rebated concrete slab as shown below will prevent
water entry under the walls of the shed.
DIAGONAL MEASUREMENTS
MUST BE EQUAL








0
. L 













'
'
�
Drive galvanized anchor
pegs into the ground
with the hook fastened
over the bottom channel
for short term temporary
anchoring.




Using a 10mm diameter masonry drill, position the bracket and drill a 60mm deep
anchor hole in the concrete. Insert the masonry anchor through the bracket
into the anchor hole until the anchor nut is firmly seated against the bracket.
Tighten the anchor nut with a spanner to attain maximum strength.

