EasyManua.ls Logo

Easysystems D1 - Page 9

Easysystems D1
9 pages
Print Icon
To Previous Page IconTo Previous Page
To Previous Page IconTo Previous Page
Loading...
E8 D1 Manual
9 of 9
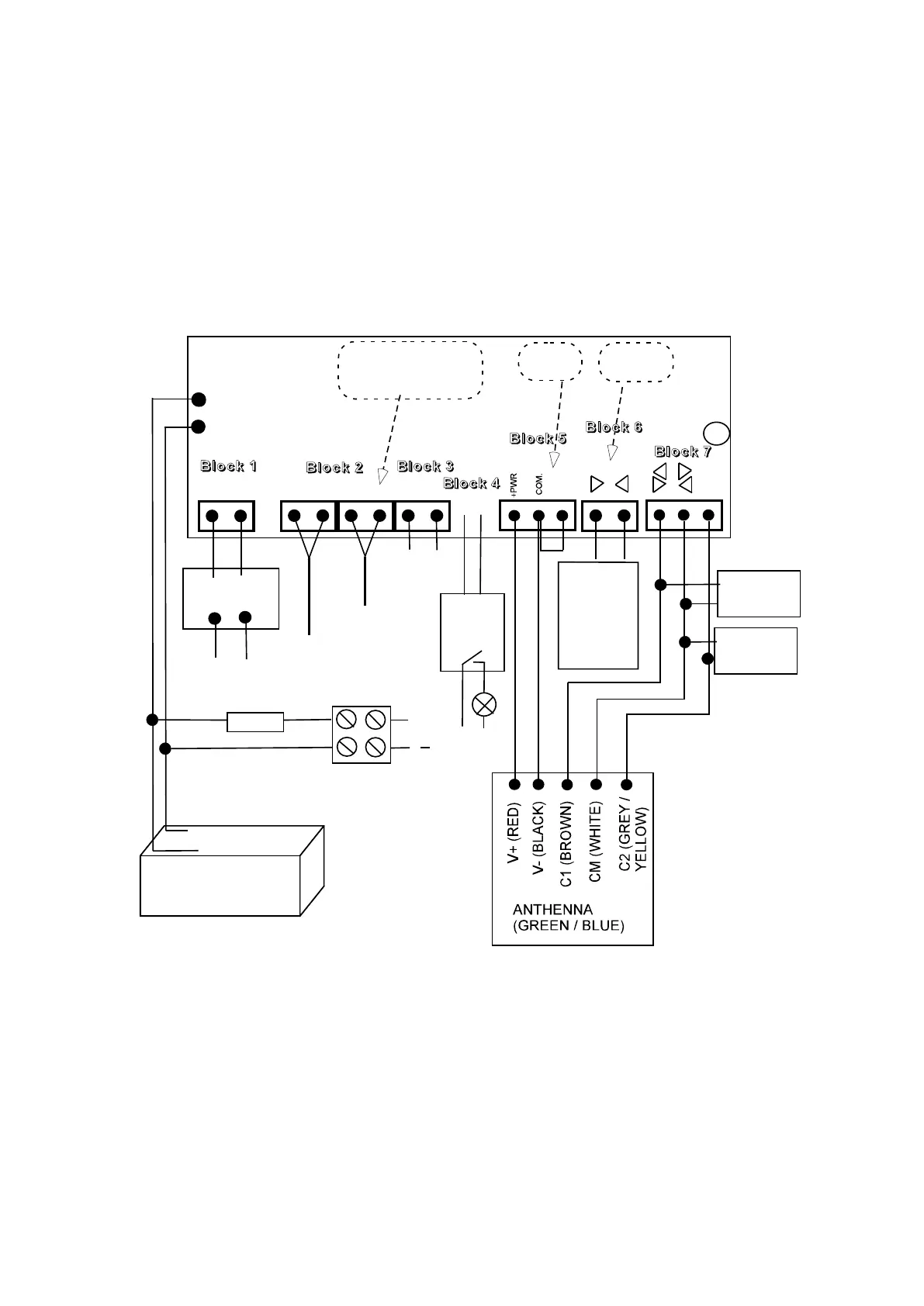
8Vac 8Vac
AC 230VAC
MAIN SUPPLY
to Transformer
to Motor B
to Motor A
Lock
L N
Loop
Detector
Auto Open
and
Apartment
Function
RED
BLACK
RED
BLACK
12V 7Ah Rechargeable
Battery
1 A FUSE
Connect Keypad and
Solar Regulator
(observe Polarity)
+
12 Vdc
Relay
To Activate
1 Gate
To Activate
2 Gate
AC Transformer
MT B
IR BEAM
MT A LOCK
LAMP
RELAY
NC
P. SW.
1/2
For SingleArm Use
only
MOTOR A
and Set
DIP#5 to ON
Loop
Detector
IR Beam
LIGHT
SENSOR
EASYSYSTEMS D1 SWING GATE CONTROL
BOARD (version 1.3.0)
Warning: Insure you have sealed all means of
entry to the control box by insects and water.