EasyManua.ls Logo

Ecologix TP30 - Typical Plumbing Connections

Default Icon
19 pages
Print Icon
To Next Page IconTo Next Page
To Next Page IconTo Next Page
To Previous Page IconTo Previous Page
To Previous Page IconTo Previous Page
Loading...
TP-M11
4
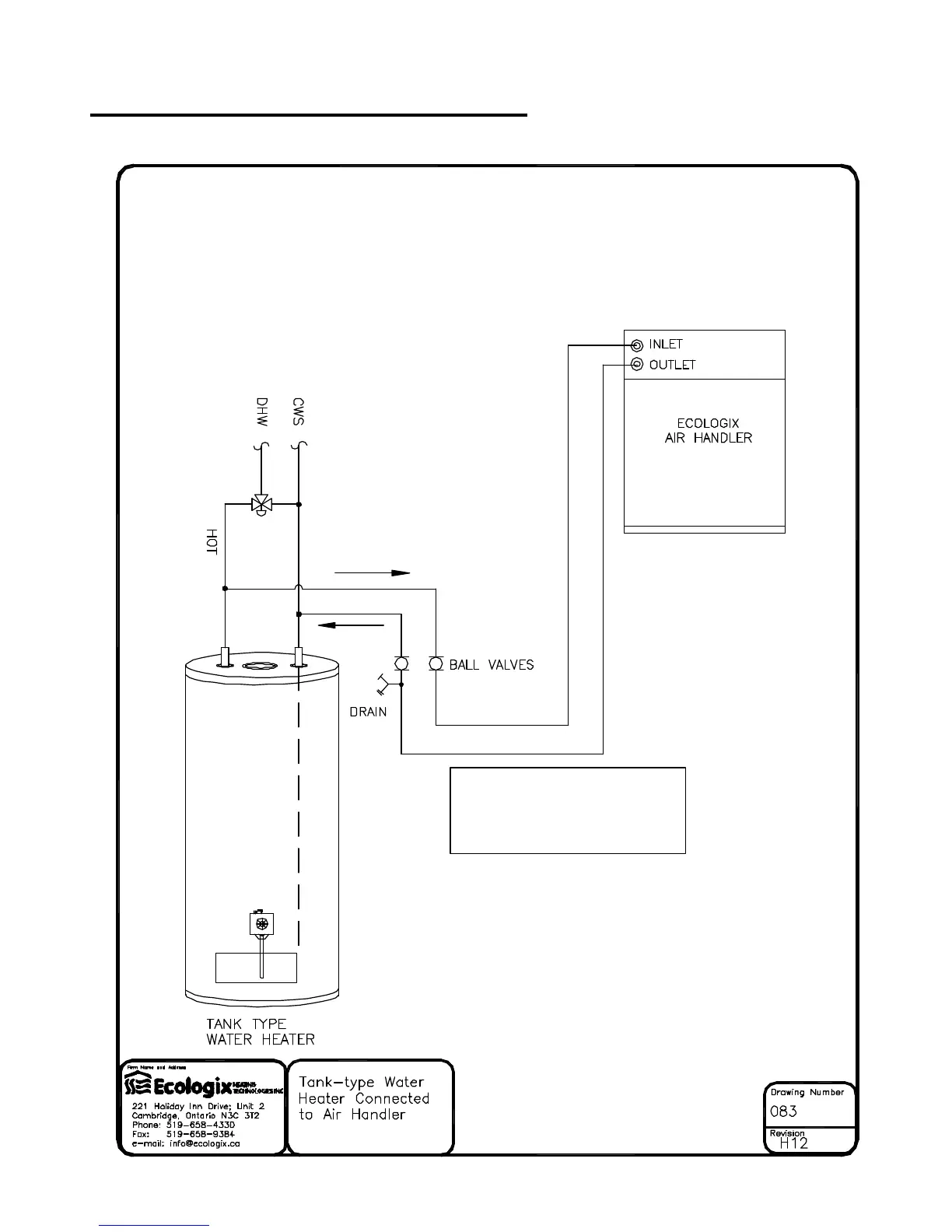
TYPICAL PLUMBING CONNECTIONS
If the water heater has
side connections, use
them for the air handler