EasyManua.ls Logo

EFF EFF 309X - Drilling Scheme (Strike Plates for Wooden Door); Bohrschema für Schließbleche

EFF EFF 309X
28 pages
Print Icon
To Next Page IconTo Next Page
To Next Page IconTo Next Page
To Previous Page IconTo Previous Page
To Previous Page IconTo Previous Page
Loading...
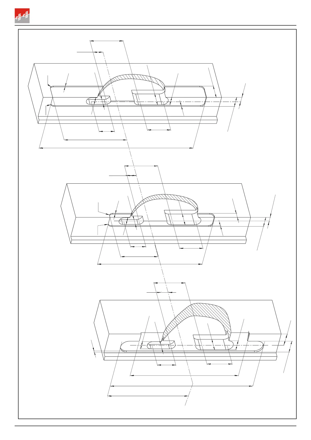
Striking plates
Schließbleche
Z09SBL-03
+0.5
-0
+0.5
-0
Z09SBL-01
Z09SBL-02/Z09SBL-04
6R
6R
24
0,50
+
0
250
23
6R
6R
15
2
11
0,50
+
0
170
2
11
15
17
2
0,50+
0
20
0,50+
0
25
54
38
25
24
2
0,50+
0
20
0,50+
0
9
20
54
38
25
0,50+
0
24
3
51
30
41
176
16
10
107
67
10
17
232
98
17
16
28 / 20*)
10
1)
DRILLING SCHEME
BOHRSCHEMA
*) EA324
18