EasyManua.ls Logo

eka KF 630 D UD - Page 18

eka KF 630 D UD
19 pages
Print Icon
To Next Page IconTo Next Page
To Next Page IconTo Next Page
To Previous Page IconTo Previous Page
To Previous Page IconTo Previous Page
Loading...
_ TECNOEKA Srl __________________________________________________________ use and instruction manual _
_ page. 18 ________________________________________________________________________________________
MOD
MODMOD
MODD
DD
D. KF
. KF . KF
. KF 966
966966
966 D
D D
D AL
ALAL
AL
UD
UDUD
UD
KF 966 D UD
KF 966 D UD KF 966 D UD
KF 966 D UD
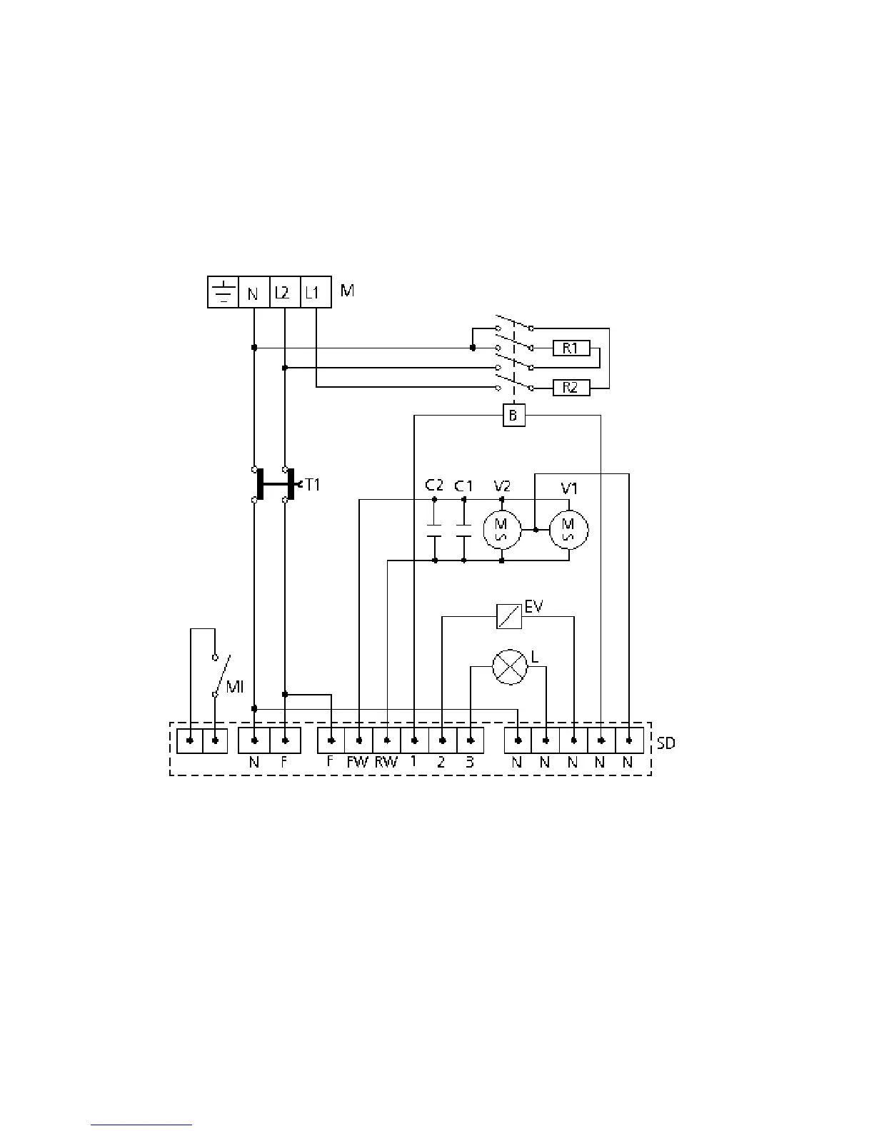
Key
KeyKey
Key
M Power terminal board
T1 Safety thermostat
MI Door microswitch
SD Electronic card
EV Humidifier solenoid-valve
B Contactor coil
L Oven lighting lamp
R1-R2 Circular heating-elements
V1-V2 Radial motoventilators
C1-C2 Capacitors

Related product manuals