EasyManua.ls Logo

Electrolux 533301 - Page 3

Electrolux 533301
3 pages
Print Icon
To Previous Page IconTo Previous Page
To Previous Page IconTo Previous Page
Loading...
Electrolux Dishwashing
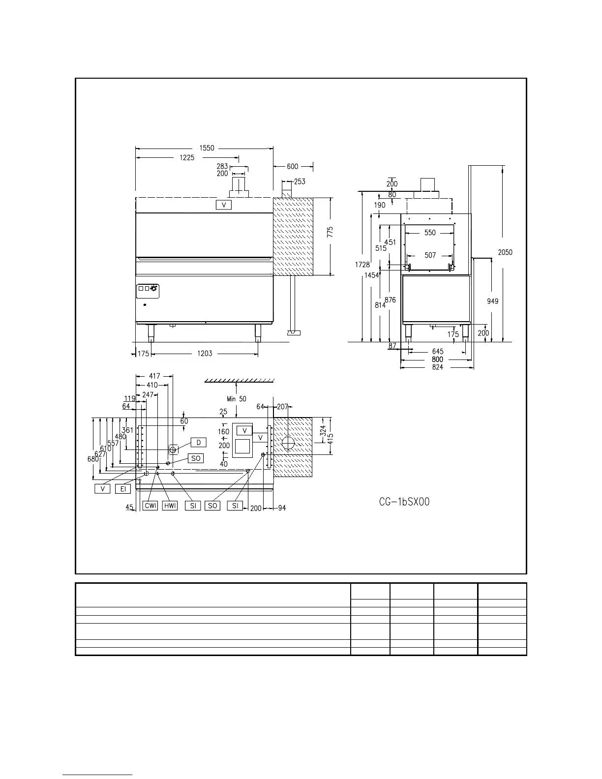
Rack Type NERT - electric (L->R)
Internet: http://www.electrolux.com/foodservice
IEAA0102010-07-30Subject to change without notice
V - Condensation outlet
HWI - Hot water inlet G 3/4" G 3/4" G 3/4" G 3/4"
EI - Electrical connection 400 V, 3N,
50
400 V, 3N,
50
400 V, 3N,
50
400 V, 3N, 50
D - Water drain 50mm 50mm 50mm 50mm
CWI - Cold water inlet G 3/4" G 3/4" G 3/4" G 3/4"
LEGEND
NERT10EL
533301
NERT10ELB
533315
NERT10ELC
533331
NERT10ELCB
533345
533301, 533345, 533331, 533315

Related product manuals