EasyManua.ls Logo

Electrolux EJF4342AOX - Ampulün DeğIştirilmesi; LED Lambaların DeğIştirilmesi (Aydınlatma LED Lambalarla Yapılıyorsa)

Electrolux EJF4342AOX
120 pages
Print Icon
To Next Page IconTo Next Page
To Next Page IconTo Next Page
To Previous Page IconTo Previous Page
To Previous Page IconTo Previous Page
Loading...
98 www.electrolux.com
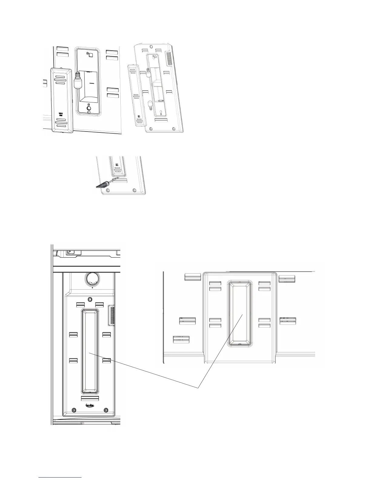
Ampun Değiştirilmesi
Dondurucu ve Sutucu bölmesindeki
Ampulün değtirilmesi in;
1- Buzdolabınızın fişini prizden
çıkartınız.
2- Kutunun kapağını, altaki rnaklardan
bir
tornovida yardımı ile çıkartınız.(A)
3- Gücü 15 Watt’ tan fazla olmayan yeni
bir ampul ile diştiriniz.(B)
4- Kapağı yerine takınız.(C)
Not: Bamodellerde dondurucu bölme
lambası yoktur.
Dondurucu Bölme
Soğutucu Bölme
A
B B
B
C
C
LED Lambaların Değiştirilmesi (Aydınlatma LED lambalarla yapılıyorsa)
Lütfen servis teknisyenini çağırın.
LED lamba

Table of Contents

Related product manuals