EasyManua.ls Logo

Electrolux EJF4342AOX - Buzdolabi Parçalari Ve Bölümleri̇

Electrolux EJF4342AOX
120 pages
Print Icon
To Next Page IconTo Next Page
To Next Page IconTo Next Page
To Previous Page IconTo Previous Page
To Previous Page IconTo Previous Page
Loading...
TÜRKÇE 103
BÖLÜM- 7.
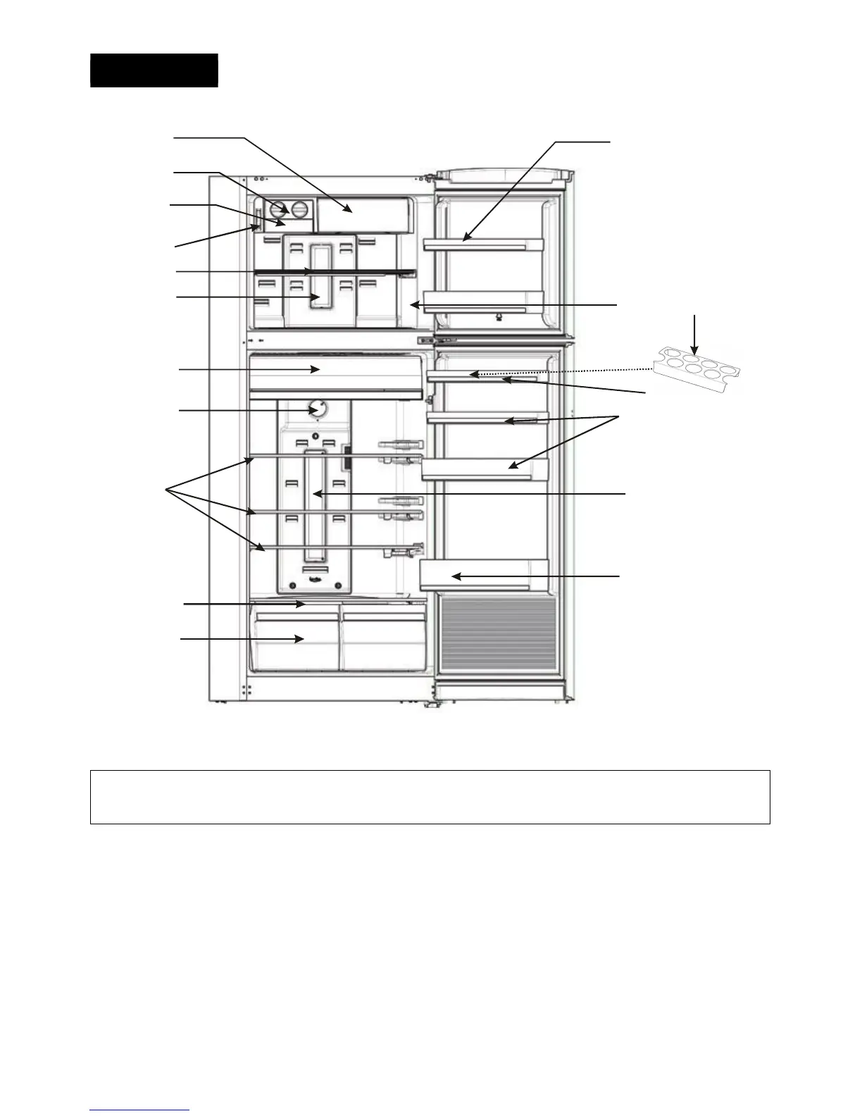
BUZDOLABI PARÇALARI VE BÖLÜMLERİ
1) Hızlı Dondurma Ra
2) Buzmatik
3) Buz Kabı
4) Dondurucu Termostat
5) Dondurucu Bölme Rafı
6) Dondurucu Bölme
7) Dondurucu Lambası ve Kapağı
8) fır Derece Rafı
9) Soğutucu Termostat ğmesi
Bu sunum yalnızca cihazın parçala hakkında bilgilendirme amaçlıdır.
Parçalar cihaz modeline göre farklı olabilir.
15
1
2
3
4
5
6
7
8
9
10
11
12
13
14
17
16
10) Soğutucu Bölme Lambası ve Kapağı
11) Soğutucu Bölme Rafı
12) Sebzelik üstü cam raf
13) Sebzelik
14) Dondurucu Ka Rafları
15)Yumurtalık
16) Peynir Tereyağı rafı
17) Soğutucu kapı rafları
18) Şişelik Rafı

Table of Contents

Related product manuals