EasyManua.ls Logo

Electrolux ENT8TE18S3 - Page 7

Electrolux ENT8TE18S3
56 pages
Print Icon
To Next Page IconTo Next Page
To Next Page IconTo Next Page
To Previous Page IconTo Previous Page
To Previous Page IconTo Previous Page
Loading...
WARNING!
Fix the appliance in
accordance with installation
instruction document to
avoid a risk of instability of
the appliance.
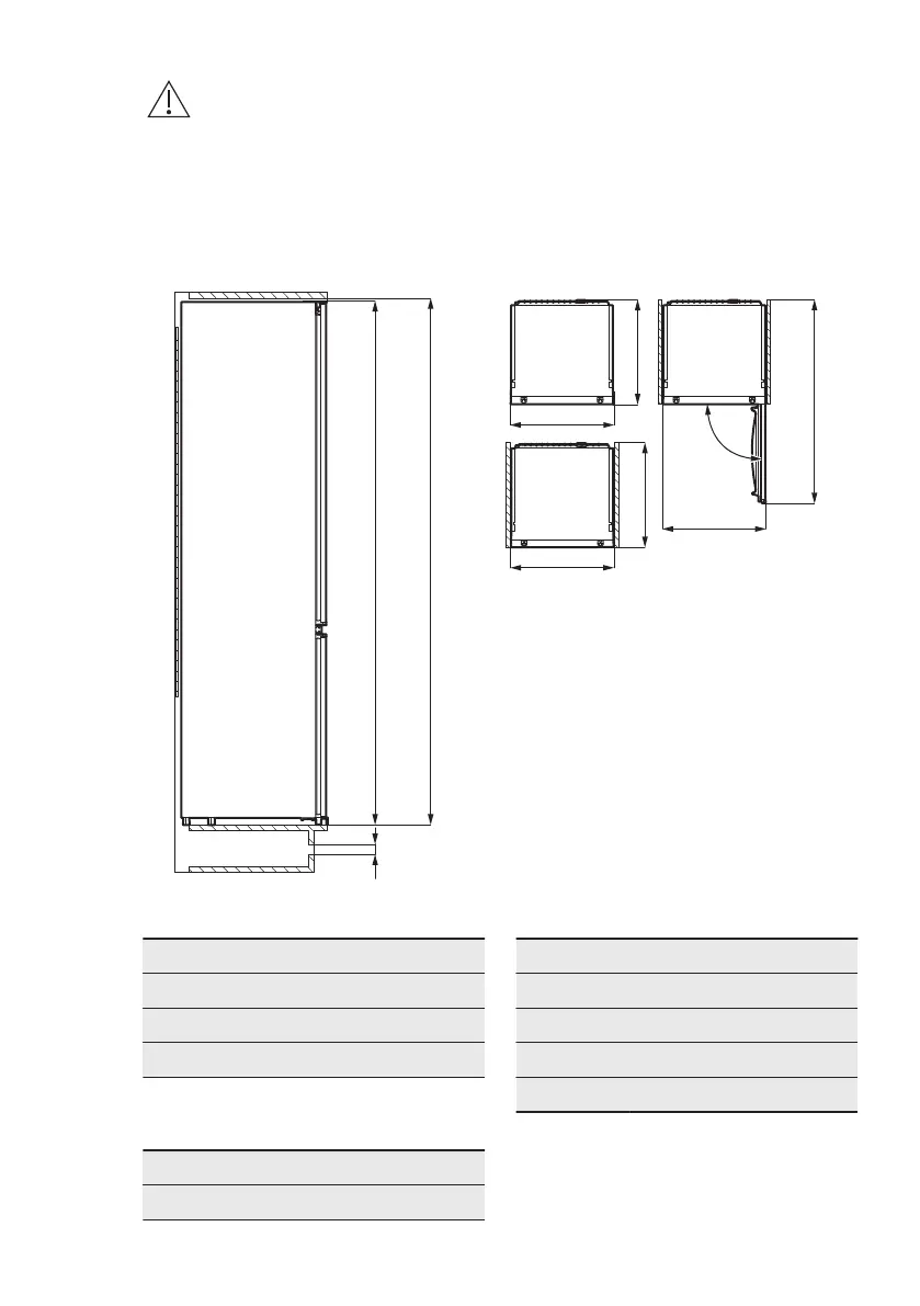
3.1 Dimensions
B
A
H1
W1
D1
W2
D2
W3
D3
9
Overall dimensions ¹
H1 mm 1772
W1 mm 546
D1 mm 549
¹ the height, width and depth of the
appliance without the handle
Space required in use ²
H2 (A+B) mm 1816
Space required in use ²
W2 mm 546
D2 mm 551
A mm 1780
B mm 36
² the height, width and depth of the
appliance including the handle, plus the
space necessary for free circulation of
the cooling air
ENGLISH 7

Related product manuals