EasyManua.ls Logo

Electrolux EWI1235 - Special Programmes

Electrolux EWI1235
26 pages
Print Icon
To Next Page IconTo Next Page
To Next Page IconTo Next Page
To Previous Page IconTo Previous Page
To Previous Page IconTo Previous Page
Loading...
ENGLISH
21
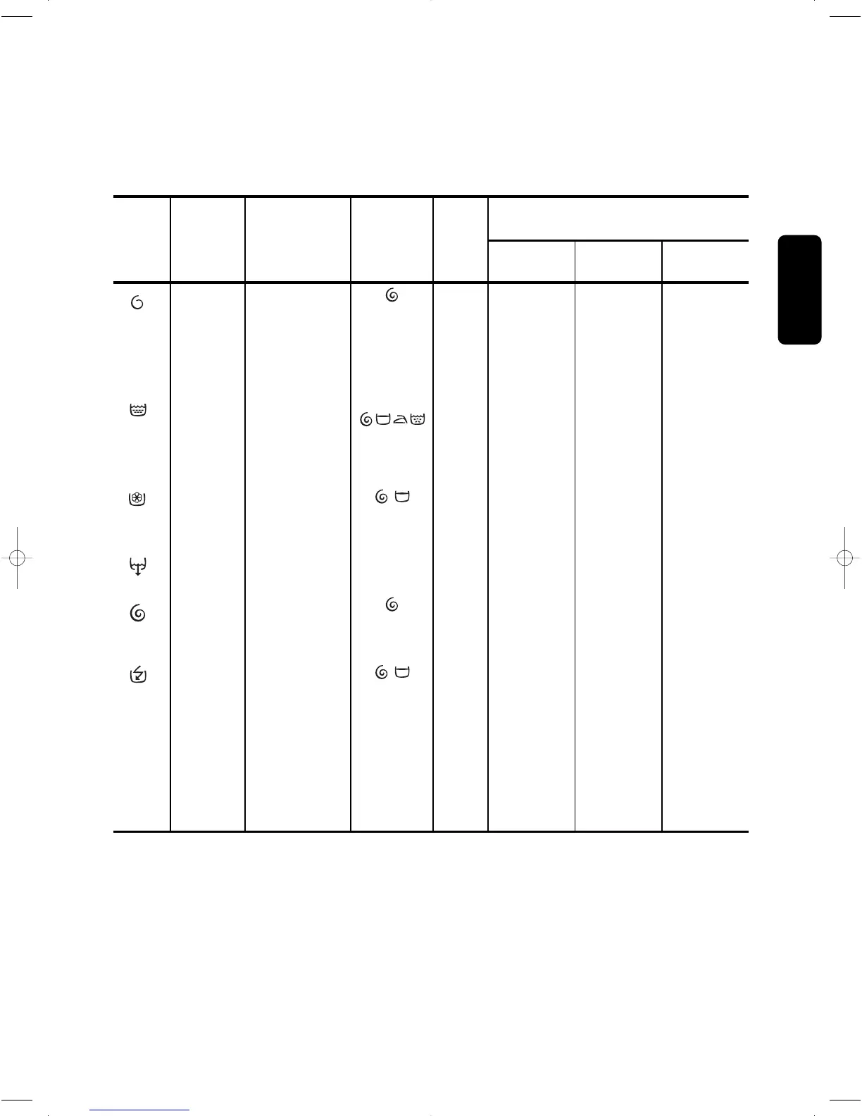
Programme chart
Special programmes
* The consumption data shown on this chart is to be considered purely indicative, as it may vary depending on
the quantity and type of laundry, on the inlet water temperature and on the ambient temperature.
O
Selector
dial
position
Programme
Additional
functions
5 kg
5 kg
5 kg
/
5 kg
2 kg
Max.
load
-
0.1
-
-
-
0.3
-
-
40
16
-
-
40
-
6
45
21
2
10
30
-
Consumption*
Energy
kWh
Water
lt
Time
min
Delicate
spin
Rinses
Softeners
Drain
Spin
Mini
program
Cancelling
Programme
description
Separate spin at
700 rpm for hand
washed
synthetics,
delicate and
wollen garments
3 rinses with
liquid additive if
required
Long spin
1 rinse with
softener
Long spin
Long spin
Wash at 30°C
2 rinses
Spin at
700 r.p.m.
For cancelling
the wash
programme
which is running
132984410.qxd 02/11/2005 10.47 Pagina 21

Related product manuals