EasyManua.ls Logo

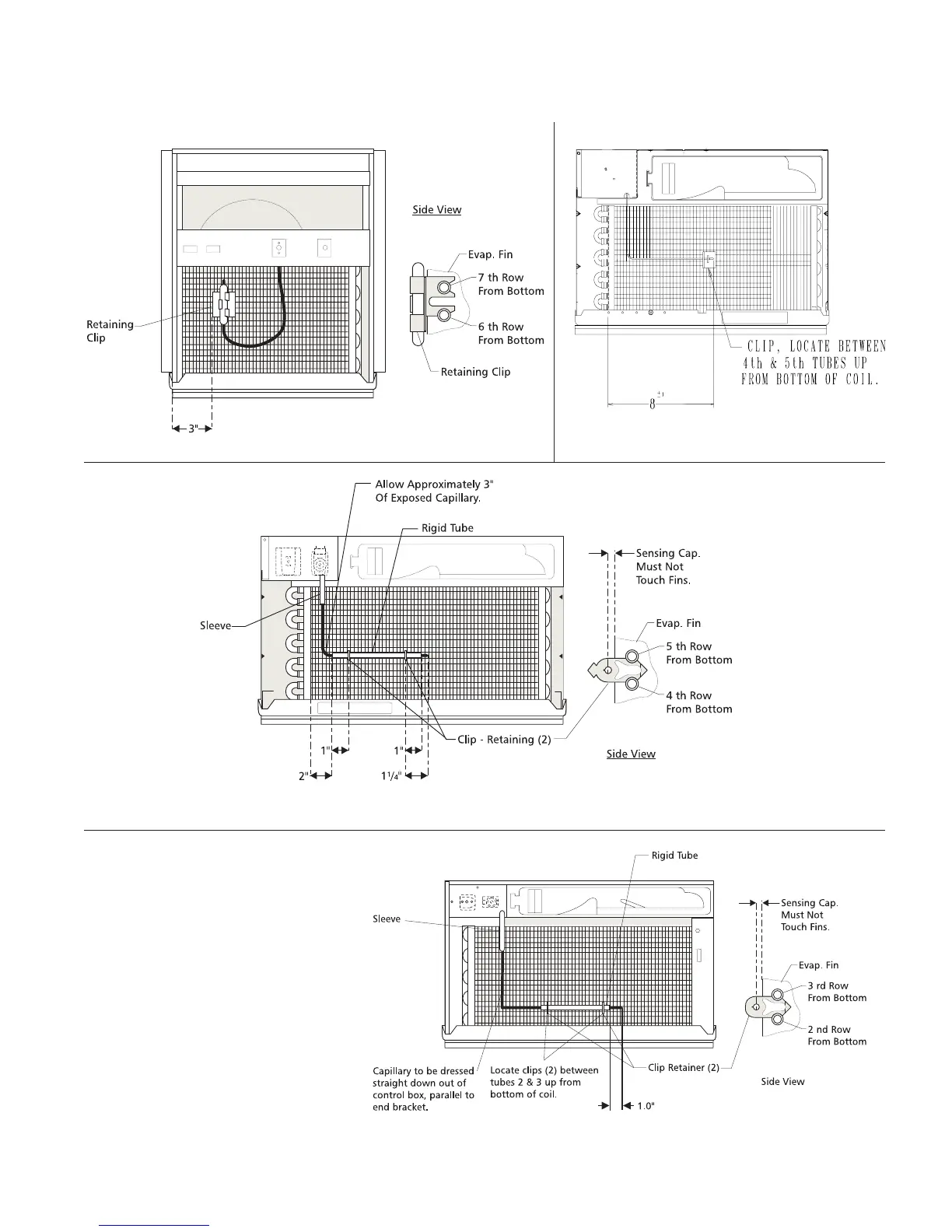
Electrolux FAC053J7A4 - Control Thermostat Location Diagrams (Part 1); Slider Casement; Compact Electronic Control; Compact Rotary Control

Electrolux FAC053J7A4
49 pages
Print Icon
To Next Page IconTo Next Page
To Next Page IconTo Next Page
To Previous Page IconTo Previous Page
To Previous Page IconTo Previous Page
Loading...
33
Control Thermostat Location Diagrams
Slider Casement
Compact Rotary Control
Intermediate Rotary
Top Control
Compact Electronic Control

Related product manuals