EasyManua.ls Logo

Electrolux Freezer - Page 4

Electrolux Freezer
4 pages
Print Icon
To Previous Page IconTo Previous Page
To Previous Page IconTo Previous Page
Loading...
Electrolux air-o-chill
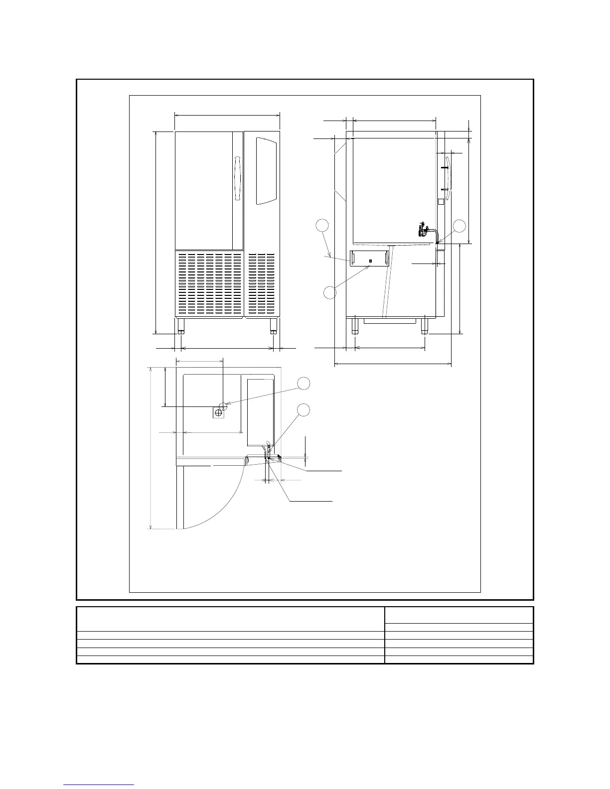
Blast Chiller/Freezers 50kg 10GN1/1
Internet: http://www.electrolux.com/foodservice
HDBB0202007-05-02
M - Remote refrigeration connection
L - Remote electrical connection
I - Electrical connection 230 V, 1N, 50
C - Water drain 1/2"
LEGEND
AOFP101CR
726750
726750
726635-726640
M
C
Øext 9.52
Øext 16
11.5
104.5
52.6789.952.6
1378.5
505.8
60
335
399.5
30
1730
895
594.175.5
995
772
12.2
705
L
I
60
100
900
M
60
55

Other manuals for Electrolux Freezer

Related product manuals