EasyManua.ls Logo

Electrolux GGC643 - Installation - Oven Types; Separate Grill Wall Oven Installation; Double Oven Installation

Electrolux GGC643
44 pages
Print Icon
To Next Page IconTo Next Page
To Next Page IconTo Next Page
To Previous Page IconTo Previous Page
To Previous Page IconTo Previous Page
Loading...
37
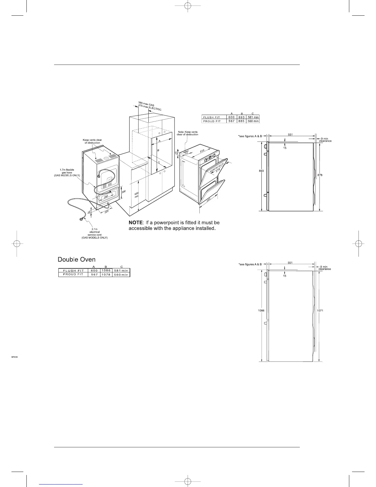
INSTALLATION
Separate Grill Wall Ovens
SIMPRD 342-1-483 1/3/06 11:00 AM Page 37

Related product manuals