EasyManua.ls Logo

Electrolux WT55 - Electrolux WT55 Technical Specifications; Electrical and Water Connections; Performance Data; Dimensions and Tank Details

Electrolux WT55
2 pages
Print Icon
To Previous Page IconTo Previous Page
To Previous Page IconTo Previous Page
Loading...
Electrolux DishwashingUK Hood Type WT55
Internet: http://www.electrolux.com/foodservice
IDA0302007-03-06
RINSE AID LEVEL PROBE KIT FOR UC+HT DW 864005
INTEGRATED HACCP KIT FOR UC, HT AND POTW 864001
HACCP PRINTER KIT FOR UC, HT AND POTW 864002
DETERGENT LEVEL PROBE KIT FOR UC+HT DW 864004
COVER GRID FOR SMALL/LIGHT ITEMS IN RACK 867016
BRASS INLET VALVE KIT FOR UC AND HT 864000
BASKET FOR 6 TRAYS 530X370MM-RED 866743
20 L EXTERNAL MANUAL WATER SOFTENER 860430
*NOT TRANSLATED* 922166
*NOT TRANSLATED* 864050
*NOT TRANSLATED* 864026
*NOT TRANSLATED* 864017
*NOT TRANSLATED* 864015
ACCESSORIES
KIT 4 PLASTIC BOXES FOR CUTLERY-YELLOW 1
BASKET FOR 48 SMALL CUPS/24 CUPS-BLUE 1
BASKET FOR 18 DINNER PLATES 240MM-YELLOW 2
INCLUDED ACCESSORIES
Alternative electrics (convert on installation) N/A
Water Supply Temperature - C 15 and above
Net weight - kg. 98
total power 10.2
Rinse pump 0.35
drain pump 0.034
Power - kW
Boiler elements - kW 9
Boiler capacity - lt. 12
water consumption - lt./cycle 3.8
temperature during rinse - °C 85
duration - sec. 16
Hot rinse cycle
electrical elements - kW 3
power pump - kW 0.8
tank capacity - lt. 42
temperature -°C 55-65
Washing cycle
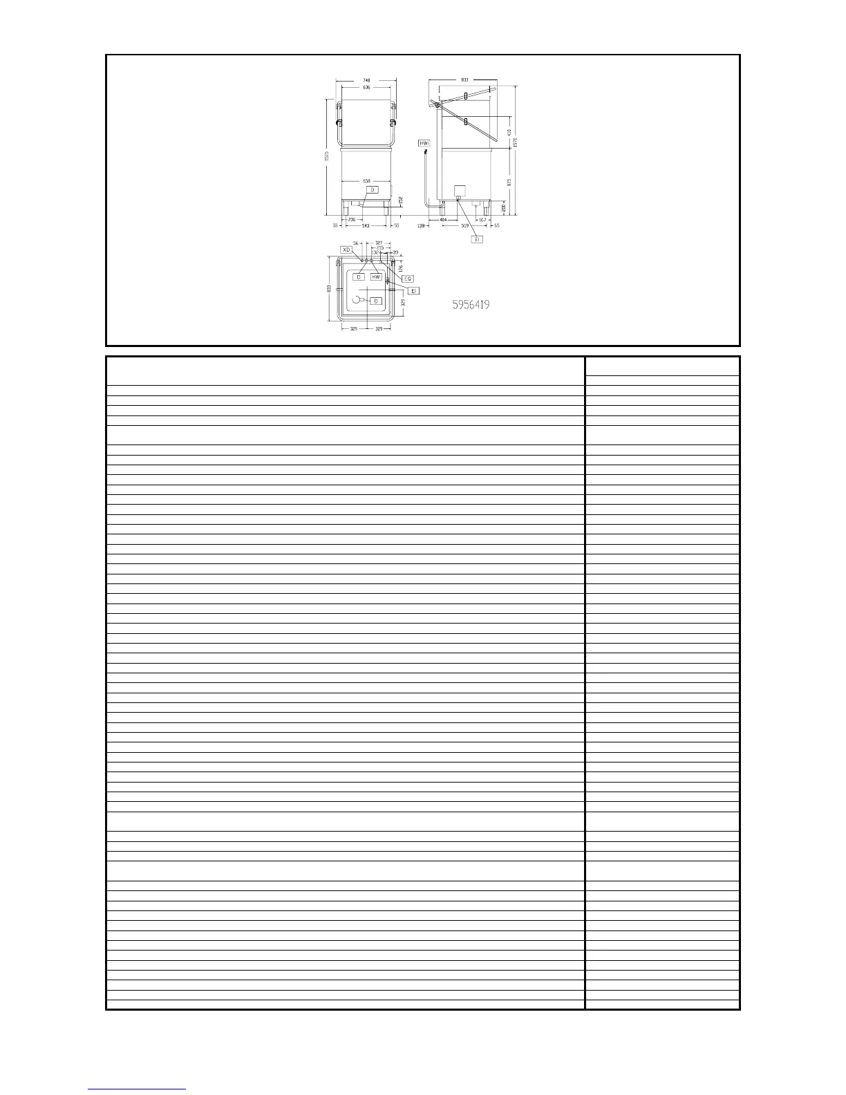
height 409
depth 560
width 585
Cell dimensions - mm
height 1515
depth 833
width 748
External dimensions - mm
Door/hood thickness Single Skin
Basket capacity/h 65
Dishes capacity/h 1170
Duration cycles - sec. 55/75/300
N° of cycles 3
Detergent dispenser
Rinse Booster Pump
Drain pump
hardness - °f 7-14
temperature - °C 50
Water supply
TECHNICAL DATA
XR - Connection for detergent dispenser
HWI - Hot water inlet G 3/4"
EI - Electrical connection 230 V, 1N, 50
D - Water drain 20.5mm
LEGEND
WT55DRG1
505042
505042

Related product manuals