EasyManua.ls Logo

Emelson SL Series - Flue Installation; Flue Installation Details

Emelson SL Series
20 pages
Print Icon
To Next Page IconTo Next Page
To Next Page IconTo Next Page
To Previous Page IconTo Previous Page
To Previous Page IconTo Previous Page
Loading...
- 7 -
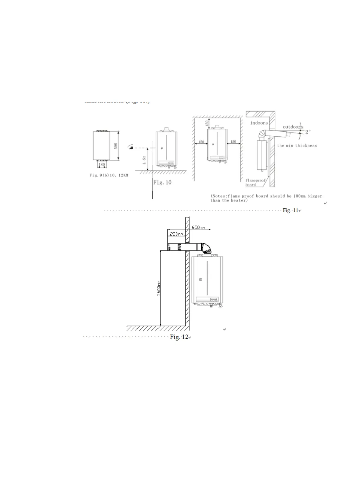
The height is suitable when the flame check window is at eye level (1.51.65m above the ground) (Fig.
10)
No visible electric wires or electric appliances are permissible above the heater, the horizontal distance
between the heater and the electric appliance should be more than 400mm. The distance between the
heater and the wall should not be less than 150mm, and the flameproof board should be 100mm bigger
than the heater. (Fig. 11.)
Installation of the flue:
This product is a Forced Exhaust and supply gas water heater, it can be used before exhausting the waste
gas to the outdoor according to the strictest requirements. Its not allowed to use the gas water heater
without operating the flue correctly.
Installation position of flue terminal protruding through wall. The minimum flue length is 650mm, and
the maximum flue length is 3000mm with one elbow. (Fig. 12)
Install the flue after the heater body is fixed. First, put the fixed flue through the hole in the wall, then
insert the elbow into the exhaust outlet of the heater smoothly, the flue end should have a 2
0
downward
inclination (Fig. 11), otherwise the rain may flow into the heater and damage it.
Use concrete to seal the gap between the flue and the wall. If the flue is installed through the glass, use
the glass glue to seal the gap tightly.
Cautions for flue installation

Related product manuals