EasyManua.ls Logo

EngA Engineered Air XES-SC Series

Default Icon
30 pages
To Next Page IconTo Next Page
To Next Page IconTo Next Page
To Previous Page IconTo Previous Page
To Previous Page IconTo Previous Page
Loading...
A XES SC MANUAL
IOM-58 14 of 30 June 14 R5
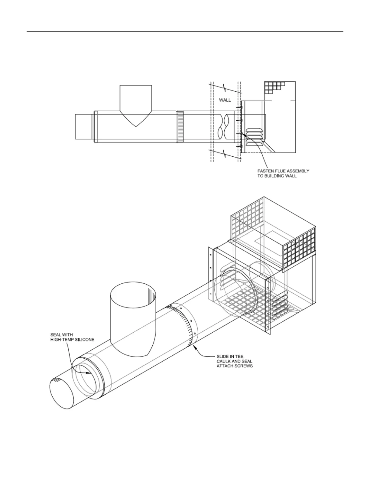
Side Wall Vent Engineered Air
Engineered Air supplied through-wall concentric vent terminations are recommended and approved for
use with XES furnace models.

Related product manuals