EasyManua.ls Logo

EngA Engineered Air XES225 - Engineered Air Side Wall Vent System

Default Icon
30 pages
Print Icon
To Next Page IconTo Next Page
To Next Page IconTo Next Page
To Previous Page IconTo Previous Page
To Previous Page IconTo Previous Page
Loading...
A XES SC MANUAL
IOM-58 14 of 30 June 14 R5
Side Wall Vent Engineered Air
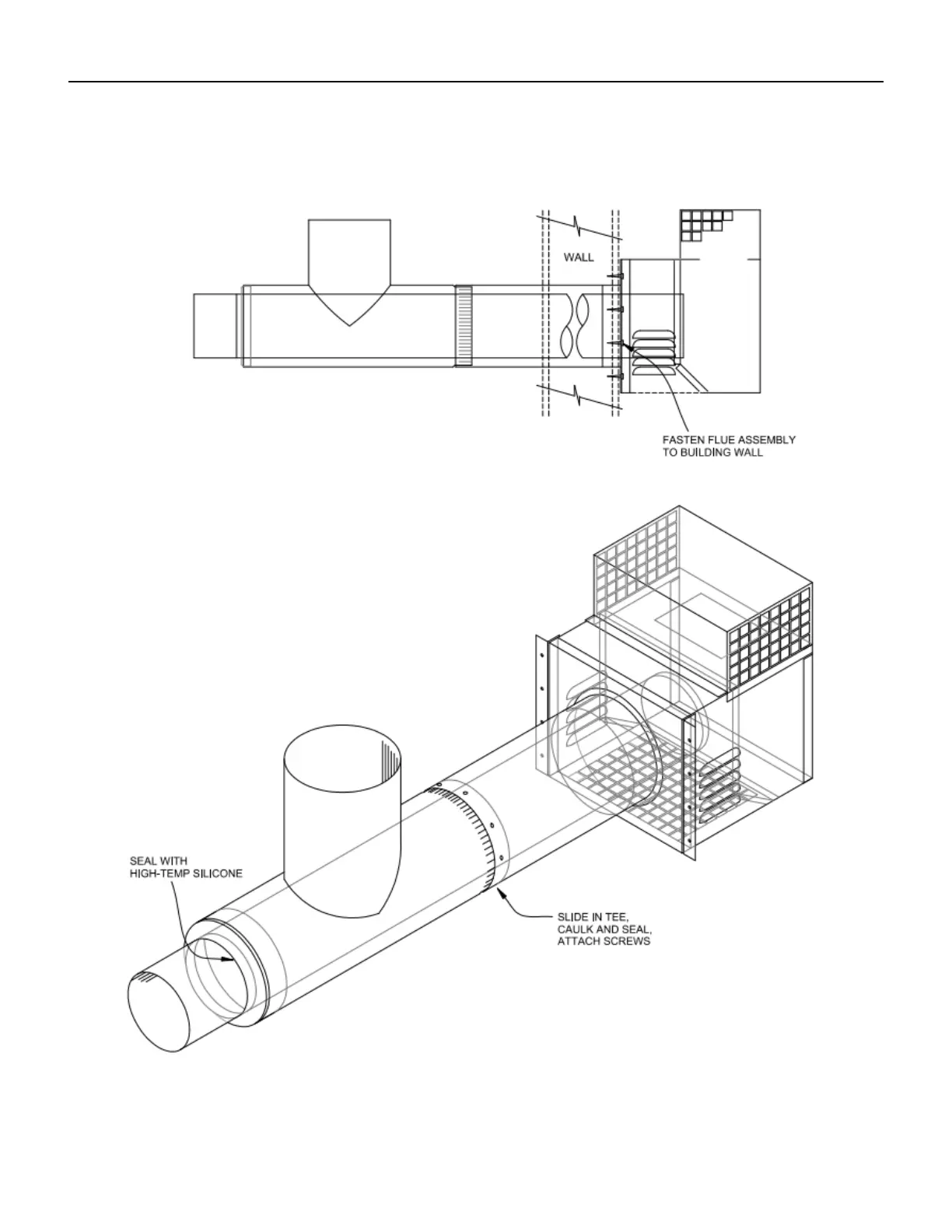
Engineered Air supplied through-wall concentric vent terminations are recommended and approved for
use with XES furnace models.

Related product manuals