EasyManua.ls Logo

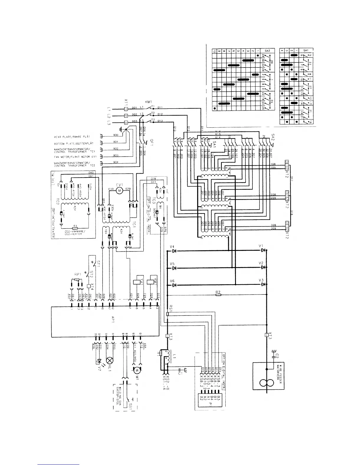
ESAB LKB 265 - LKB 320 (400-415 V) Primary Connections Diagram

ESAB LKB 265
18 pages
Print Icon
To Next Page IconTo Next Page
To Next Page IconTo Next Page
To Previous Page IconTo Previous Page
To Previous Page IconTo Previous Page
Loading...
-- 1 0 2 --bc14e12a
LKB 320 (400/415V)

Other manuals for ESAB LKB 265

Related product manuals