EasyManua.ls Logo

Etherma LAVA - Page 7

Etherma LAVA
16 pages
Print Icon
To Next Page IconTo Next Page
To Next Page IconTo Next Page
To Previous Page IconTo Previous Page
To Previous Page IconTo Previous Page
Loading...
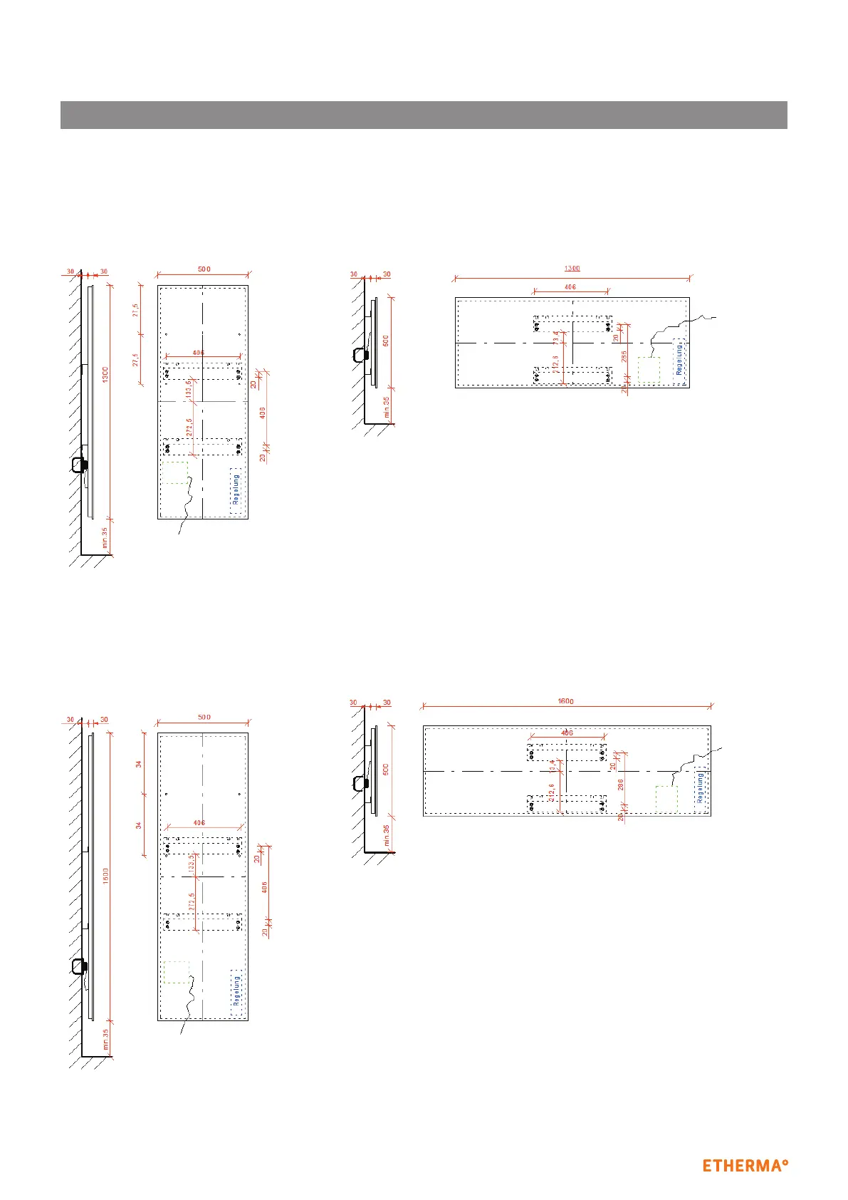
HOLE SPACING FOR DRILLING – WALL MOUNTING
ATTENTION: Mind minimum distances! Use required mounting holes!
LAVA
®
GLAS 600
LAVA
®
GLAS 800
vertical
front view
vertical
front view
horizontal
front view
horizontal
front view
cable with plug
cable with plug
cable with plug
cable with plug
7
INSTALLATION AND USAGE INSTRUCTION | LAVA
®
DESIGN INFRARED HEATER

Related product manuals