EasyManua.ls Logo

Everbilt 9236046 - Dimensions

Everbilt 9236046
6 pages
Print Icon
To Next Page IconTo Next Page
To Next Page IconTo Next Page
To Previous Page IconTo Previous Page
To Previous Page IconTo Previous Page
Loading...
4
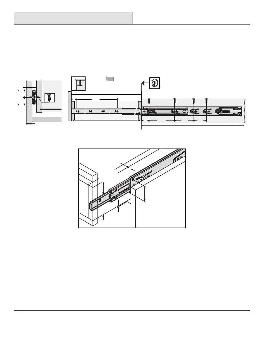
Dimensions
Please review these diagrams and measure and mark your installation location before you begin the installation procedures.
Ƒ To avoid binding, the drawer or pull-out-shelf must be 1/2 in. (12.7 mm) narrower than the cabinet opening on each side.
Ƒ The top and bottom of the drawer or pull-out-shelf bottom should have a 1/8 in. (3.2 mm) minimum clearance from the cabinet
opening.
Ƒ These slides have a capacity of 77 lb (35 kg), per pair.
Ƒ These slides are available in lengths of 20 in. (500 mm) and 22 in. (550 mm).
37 96
Minimum Carcase depth
128 64
4
37
344
Nominal Length
mm
46
12.7
23
23
ø 4 x 12
≥ 1 6
1-13/16"
(46 mm)
1/8" Min.
(3.2 mm)
1-1/4"
(31.8 mm)
1/2"
(12.7 mm)

Related product manuals