EasyManua.ls Logo

Everdure CBES61 - Page 7

Everdure CBES61
12 pages
Print Icon
To Next Page IconTo Next Page
To Next Page IconTo Next Page
To Previous Page IconTo Previous Page
To Previous Page IconTo Previous Page
Loading...
DESIGNED TO PERFECTION
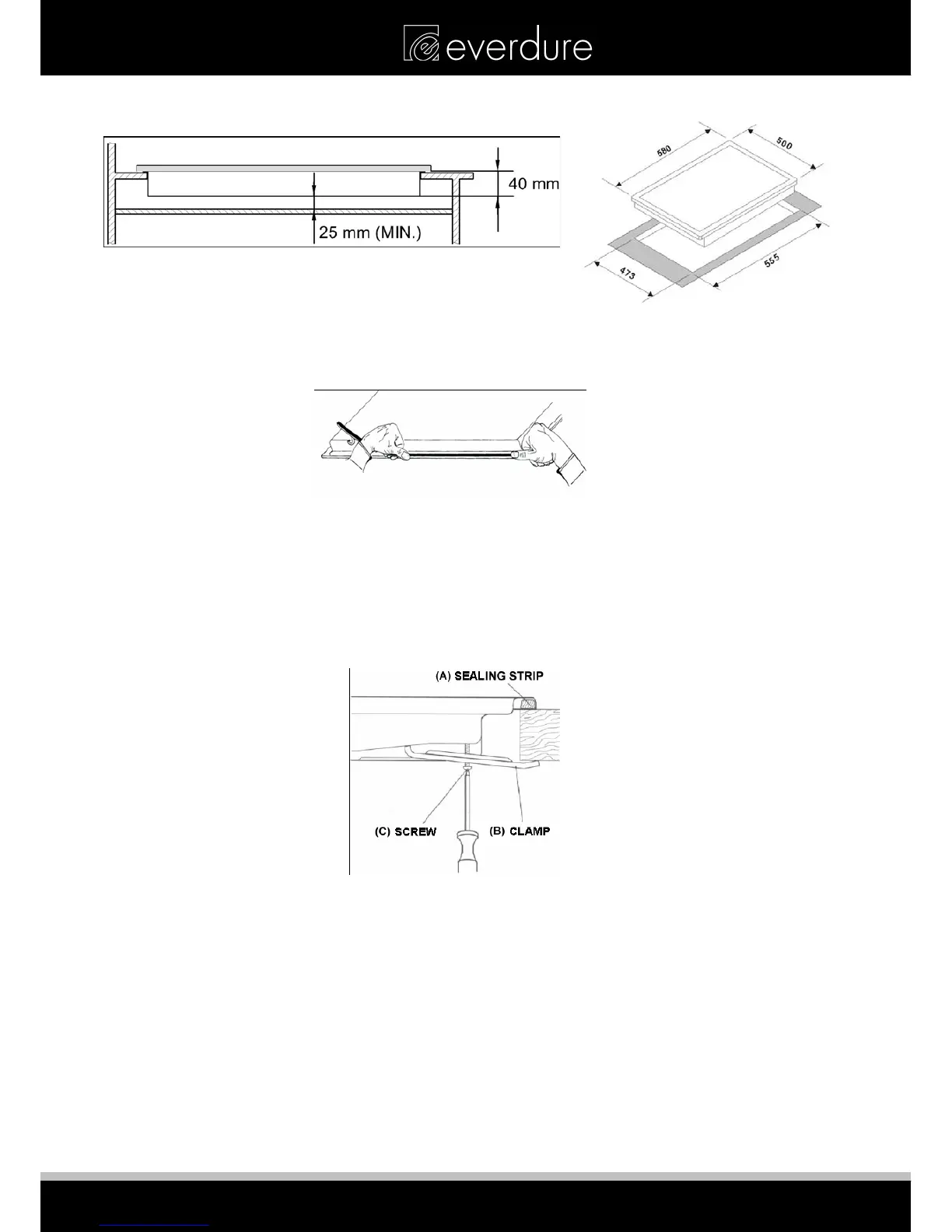
INSTALLING THE APPLIANCE CBES61
Cut a hole in the worktop that corresponds with the drawings shown above.
IMPORTANT: You must have a gap of at least 25 mm between the underneath of the appliance and any
surface that is below it.
Carefully turn the cooktop upside down and place it on a cushioned mat. Apply the sealing strip provided
around the edge of the appliance. The protective covering must be removed from both sides. Do not leave a
gap in the sealing agent or overlap the thickness.
IMPORTANT: Do not use a silicon sealant to seal the appliance against the bench top. This will make it difficult
to remove the cooktop from the bench top in future, particularly if it needs to be serviced.
(A) Sealing strip
(B) Clamp
(C) Screw
Place the clamp (B) over the holes that match the size of the screws. There are one set of screw holes in each
corner of the hob. Slightly tighten a screw (C) through the clamp (B) so that the clamp is attached to the hob,
but so that you can still adjust the position of it.
Carefully turn the hob back over and then gently lower it into the aperture hole that you have cut out.
On the underneath of the hob, adjust the clamps into a position that is suitable for your worktop. Then fully
tighten the screws (C) to secure the hob into position.
7

Related product manuals