EasyManua.ls Logo

Everflo EPU-US10 - Page 15

Default Icon
24 pages
Print Icon
To Next Page IconTo Next Page
To Next Page IconTo Next Page
To Previous Page IconTo Previous Page
To Previous Page IconTo Previous Page
Loading...
14
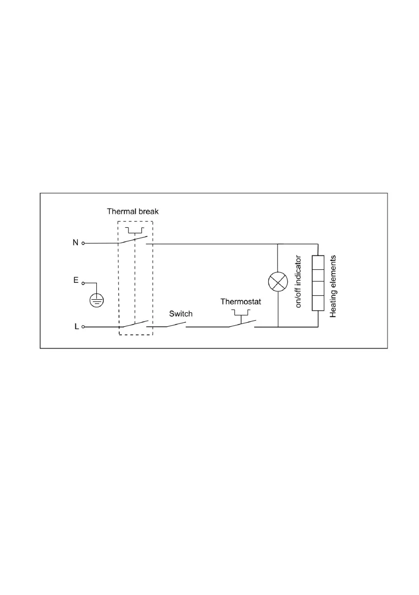
Connect power supply via switched fused spur.
Run flex through power cable entrance position 11 and connect to the terminal
block inside the unit.
INSTALLATION - ELECTRICAL