EasyManua.ls Logo

fadini Elpro 62 - Diagnostic LEDs and System Status

Default Icon
20 pages
Print Icon
To Next Page IconTo Next Page
To Next Page IconTo Next Page
To Previous Page IconTo Previous Page
To Previous Page IconTo Previous Page
Loading...
pag 18
ATTENTION !!The installation of this product must be performed by prrofessionally trained and qualified personnel according to the safety regulations
in force.
It is important to carefully read and follow the instructions so as to avoid a faulty use of this same product. The ELPRO 62 electronic programmer
was conceived and manufactured for the management of the Junior 624 electromechanical sliding operator with 24 V DC motors. Any other use
different from that specified in this instruction booklet is to be consedered prohibited.
ATTENTION !! The Meccanica Fadini Company declines any and all responsability for ensuing damages to thing and/or people due to any faulty
installation or the lack of bringing the system uo to code according to the laws and regulations in force. The application of the Machine Directive
98/37/EEC is required.
All of the maintenance and/or test operations of the status of the product must be performed by professionally trained and qualified personnel.
ATTENTION ! Important: before carrying out any procedure on the PCB card, disconnect the elctrical power supply mains. It is furthermore recommended that the
"Safety Regulations" made available by Meccanica Fadini be examined throughly.
General description:The Elpro 62 is a PCB card with microprocessor for the command and management of the Junior 624 sliding gate opener with
programming for self-learning of the different movement phases of the gate.
Power Supply: 230V 50Hz±10% mono phase corresponding to the BT 73/23/CEE - 93/68/CEE and the EMC 89/336/EEC safety regulations for low voltage
and the EMC 89/336/EEC - 92/31/CEE.
Logic Operation : given the open command impulse, it performs the function for open, pause, close in automatic or semi-automatic with programmable
slowdown, possibility of step by step radio command, radio no reverse on opening, with or without pre-flashing, pedestrian open function, exclusion of
closing slow down, reverse run upon contact with an obstacle and LED diagnostics. Set up for double sliding exit, defined by the way of Dipswitches of
the RH nad LH installation, Blue/Amber LED lamp on the cover casing for the gate opener status signal.
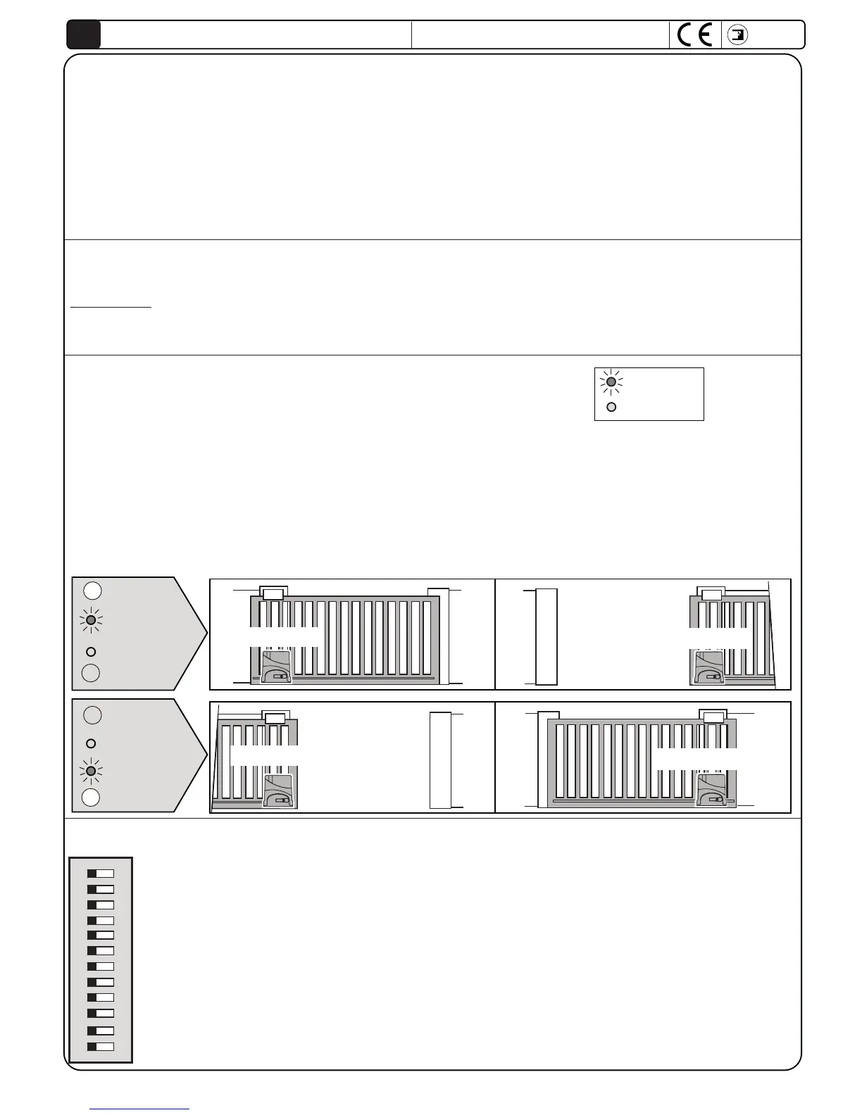
DIAGNOSTIC LED: LED status during proper operation of the system
L2 (on)= Photocells, turns off with obstacle present
L4 (off)= Open, lights up with the opening command impulse
L5 (on)= Close, lights up with the opening command impulse
L6 (on)= Stop, goes off with the stop command impulse
L7 (off)= Radio, lights up with each transmitter impulse
L10 (off)= Light up in case of short 24 Vcc. Light off when take off the short
L20 (off)= Pedestrian, lights up with the open for pedestrian switch
L21 (on)= Photocell in open, turn off with present obstacle
L22 (on)= Enter of 2° Junior
LP (off) = Led of program, light on in phase of programming
X = led limit switch, always light on during the movement
Y = led limit switch, always light on during the movement
DIP-SWITCH: enables the performance of all of the possible functions of the Junior 624 gate opener
123456789101112
ONOFF
Junior 624 - 24V dc
meccanica
FADINI
Elpro 62
GB
1 = OFF: Photocell not stopped in opening
2 = OFF: Radio in opening stops and reverses
3 = OFF: Semiautomatic operation
4 = OFF: Without pre-flashing before opening
5 = OFF: Radio reverses direction on every impulse
6 = OFF: Slowdowns ( to be programmed)
7 = OFF: Blank
8 = OFF: Flasher on in pause
9 = OFF: No closing after passage by the photocell
10 = OFF: No DSA control on the photocell
11 = OFF: Junior 624 installed on the Left
12 = OFF: Single Elpro 62, or the 1st Junior 624 MASTER
ON: Photocell stopped in opening
ON:
Radio does not reverse (and does not stop) in openig
ON: Close in automatic after pause time
ON: Pre-flashing before opening
ON: Radio switch: open-stop-close-stop
ON: Eliminates slowdowns
ON: Blank
ON: Flasher off in pause
ON: Closing after passage by the photocell
ON: Check DSA Photocell before start up
ON: Junior 624 installed on the Right
ON: Elpro 62 SLAVE of the 2nd Junior 624
Junior LEFT
Junior RIGHT
X
Y
LED X on
LED Y on
X
Y
LED off
LED on
Junior LEFT
Junior RIGHT

Related product manuals