EasyManua.ls Logo

Fagor DDS RPS-75 - Page 41

Fagor DDS RPS-75
406 pages
Print Icon
To Next Page IconTo Next Page
To Next Page IconTo Next Page
To Previous Page IconTo Previous Page
To Previous Page IconTo Previous Page
Loading...
Power supplies
2.
Ref.1912
· 41 ·
DDS
HARDWARE
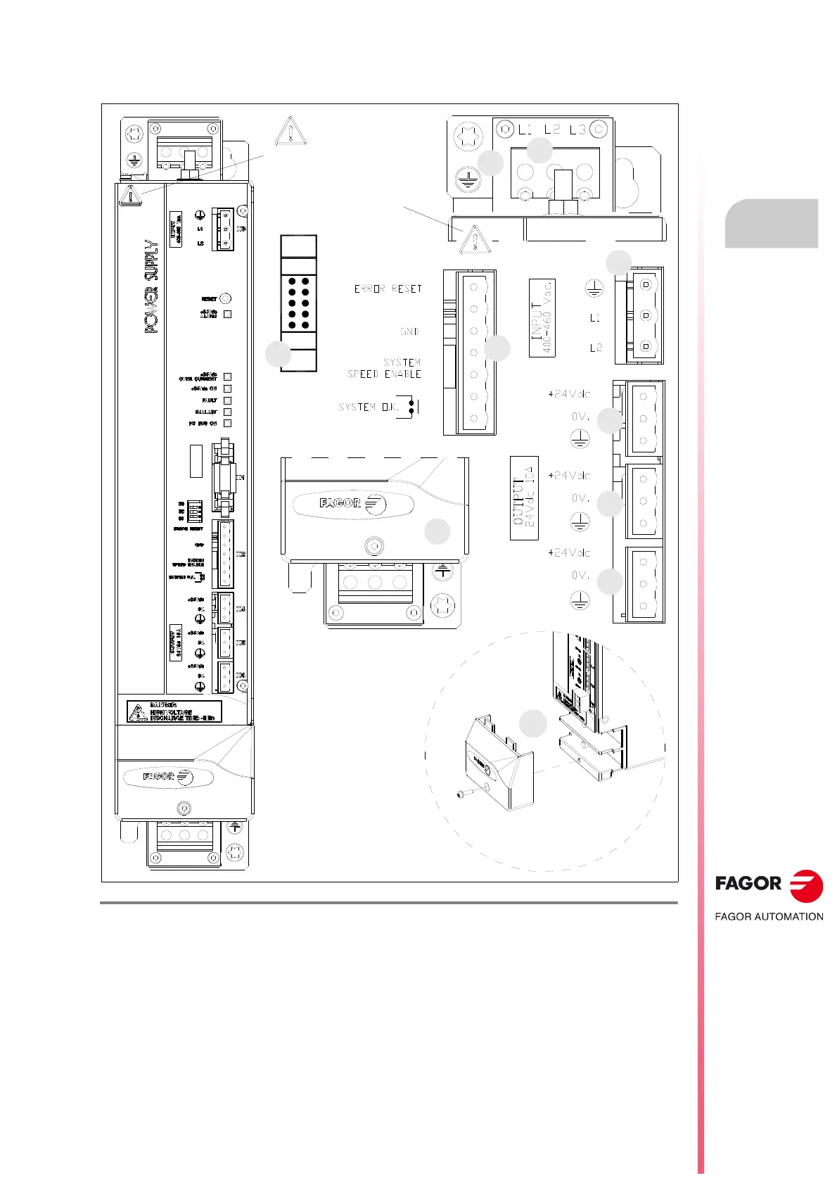
Connector description
The non-regenerative power supply PS-25B4 has the following connectors:
F. H2/7
Non-regenerative power supply, PS-25B4. Connectors.
1. Power connector for the three-phase mains.
2. Power connector for the external Ballast resistor connection.
3. Ground connection for the mains cable.
4. Power DC BUS supplying power to the modular drives through metal bars.
X1. Connector for inter-module communication.
X2. Connector for the basic control signals.
X3. Input connector supplying from mains to the auxiliary power supply integrated into the module. The
mains power is received through it. It admits a voltage between 400 and 460 V AC.
X4. Output connector of the auxiliary 24 V DC power supply integrated into the module.
X5. Output connector of the auxiliary 24 V DC power supply integrated into the module.
X6. Output connector of the auxiliary 24 V DC power supply integrated into the module.
4
Ri
Re
L+
2
X4
X5
X6
X3
3
X1
X2
CAUTION.
AC touch current
greater than 3.5 mA. Install
ground wire of at least 10
mm² (Cu) or 16 mm² (Al).
1

Table of Contents

Related product manuals