EasyManua.ls Logo

FATEK FBs-2DA - Page 146

FATEK FBs-2DA
348 pages
Print Icon
To Next Page IconTo Next Page
To Next Page IconTo Next Page
To Previous Page IconTo Previous Page
To Previous Page IconTo Previous Page
Loading...
Basic Function Instruction
6 - 21
FUN 7 D
UDCTR
UP/DOWN COUNTER
(16-bit or 32-bit up and down 2-phase Counter)
FUN 7 D
UDCTR
Symbol
Operand
CV :
CKClock
CUP
Ladder symbol
U/D
CLR
Up/Down count
Clear counter
7D.UDCTR
PV :
Count-UP (FO0)
CV: The number of the Up/Down Counter
PV: Preset value of the counter or it's
register number
WX WY WM WS TMR CTR HR IR OR SR ROR DR K
Range
Ope-
rand
WX0
WX240
WY0
WY240
WM0
WM1896
WS0
WS984
T0
T255
C0
C255
R0
R3839
R3840
R3903
R3904
R3967
R3968
R4167
R5000
R8071
D0
D4095
16/32-bit
+/ number
CV * *
PV
Description
When the clear control “CLR” is 1, the counter’s CV will be reset to 0 and the counter will not be able to
count.
When the clear control “CLR” is 0, counting will then be allowed. The nature of the instruction is a P
instruction. Therefore, when the clock “CK” is 01 (rising edge), the CV will increased by 1 (if U/D=1) or
decreased by 1 (if U/D=0).
When CV=PV, FO0(“Count-Up) will change to 1”. If there are more clocks input, the counter will continue
counting which cause CVPV. Then, FO0 will immediately change to 0. This means the “Count-Up” signal
will only be equal to 1 if CV=PV, or else it will be equal to 0 (Care should be taken to this difference from
the “Count-Up” signal of the general counter).
The upper limit of up count value is 32767 (16-bit) or 2147483647 (32-bit). After the upper limit is reached,
if another up count clock is received, the counting value will become –32768 or -2147483648 (the lower
limit of down count).
The lower limit of down count value is -32767 (16-bit) or -2147483647 (32-bit). After the lower limit is
reached, if another down count clock is received, the counting value will become 32768 or 2147483648
(the upper limit of up count).
If U/D is fixed as 1, the instruction will become a single-phase up count counter. If U/D is fixed as 0, the
instruction will become a single-phase down count counter.
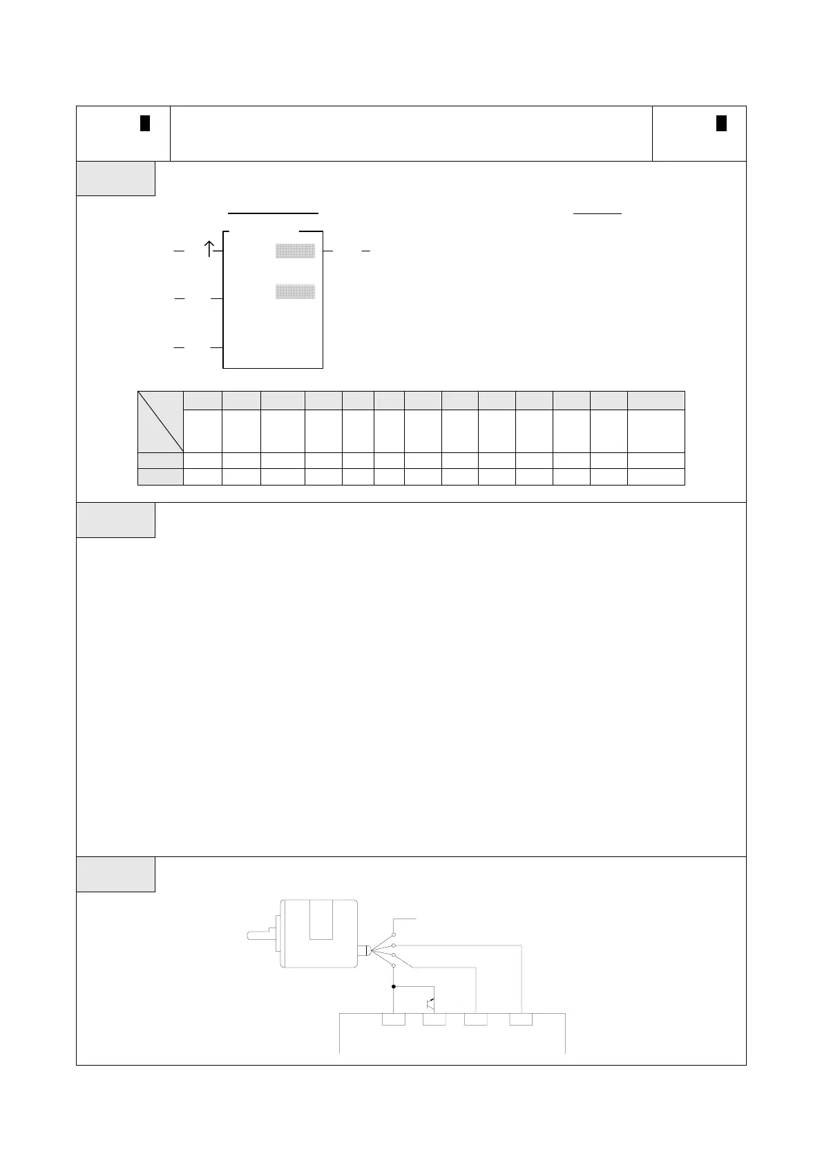
Example The diagram below is an application example of UDCTR instruction being applied to an encoder.
PLC
2-phase encoder
Black
Red (POWER + 24VDC)
Green (B phase)
White (A phase)
C
X16
X17
X18
SW

Other manuals for FATEK FBs-2DA

Related product manuals