EasyManua.ls Logo

FE PXR5 - Manual Mode Setting

Default Icon
83 pages
Print Icon
To Next Page IconTo Next Page
To Next Page IconTo Next Page
To Previous Page IconTo Previous Page
To Previous Page IconTo Previous Page
Loading...
15
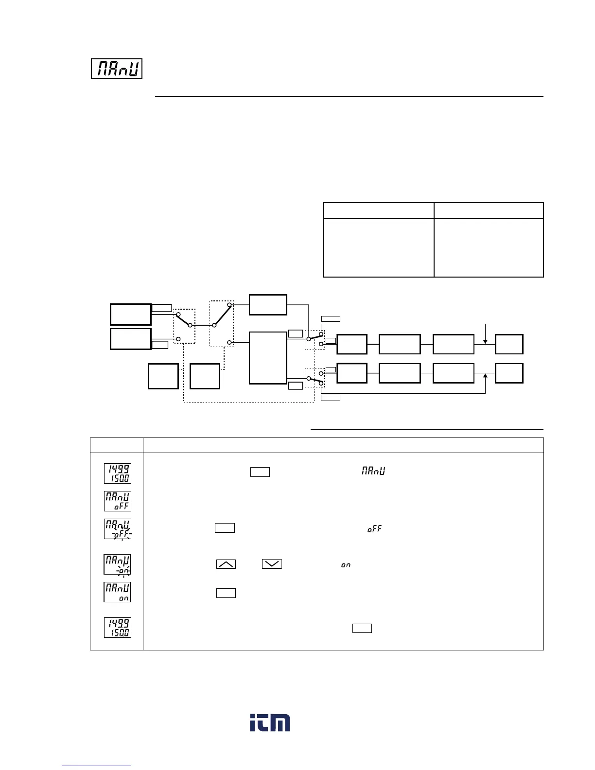
Manual mode setting (Settings: oFF/on)
[Setting example] Switching to manual mode
Press and hold the
SEL
key for one second, and is displayed.
Press the
SEL
key once, and the current set value (
) on the SV display section starts flickering.
Press the or the keys to display .
Press the
SEL
key once, and the manual lamp at the lower right corner comes on, indicating that
the mode has been switched to Manual.
To display operation status, press and hold the
SEL
key for two seconds.
Operating procedureDisplay
1.
2.
4.
3.
5.
[Description]
•This parameter switches the control mode between Auto
and Manual.
During Manual operation, the decimal point is kept on at
the far right in the SV display section.
During Manual operation, auto tuning or self tuning is
not done. If the mode is switched to Manual while auto
or self tuning is being done, the tuning is forcibly
terminated. The PID parameter remains the same in such
cases.
Manual operation output is not limited by MV limit.
•Manual operation can be carried out during standby
operation.
•The operation output set value during Auto/Manual
operation mode and manual mode is stored in non-volatile
memory. It is kept stored even if a power interruption
occurs. When the power is turned on again, the state
before the power interruption is resumed.
•The following table lists the operation output at the time
of switching between Auto and Manual..
Auto Manual Manual Auto
Balanceless bumpless
(Switches to manual mode,
holding the MV value just
before the switching.)
MV output according to
PID operation
(Sudden change may occur
to the MV value.)
Manual
MV
Single
output
Limit
Standby
Error
output
Error
output
StandbyLimit
Dual
output
OUT1
OUT2
Manual
AUTO
PID
calculation
MAnU
ON
P-n1
Single
=
=
MV1
Manual
Manual
Auto
Auto
MV2
www. .com
information@itm.com1.800.561.8187

Table of Contents

Related product manuals