EasyManua.ls Logo

Fedders A6K32E7B - Page 24

Fedders A6K32E7B
28 pages
Print Icon
To Next Page IconTo Next Page
To Next Page IconTo Next Page
To Previous Page IconTo Previous Page
To Previous Page IconTo Previous Page
Loading...
J
K
L
M
M
N
O
P
D
I
A
C
B
J
M
O
P
E
D
G
H
F
I
Encadrement en bois
Vis à bois – 1 po
Caisse
Tringle inférieure
l’intérieur de la pièce
Panneau de façade décoratif
Support en bois – minimum 2,5 x 15,2 cm (1 x 6
po) (fixation sur l'encadrement en bois par clous
ou vis)
Encadrement en bois 5 cm x 5 cm (2 po x 2 po), tout
autour
Espace –3,8 cm (1-1/2 po)
Espace –3,2 cm (1-1/4 po)
Parement de briques
Cornière de linteau
Calfeutrage
Solin (égouttement de l'eau)
Claires-Voies latérales
Panneau de bois
À TRAVERS UN MUR
INSTALLATION
24
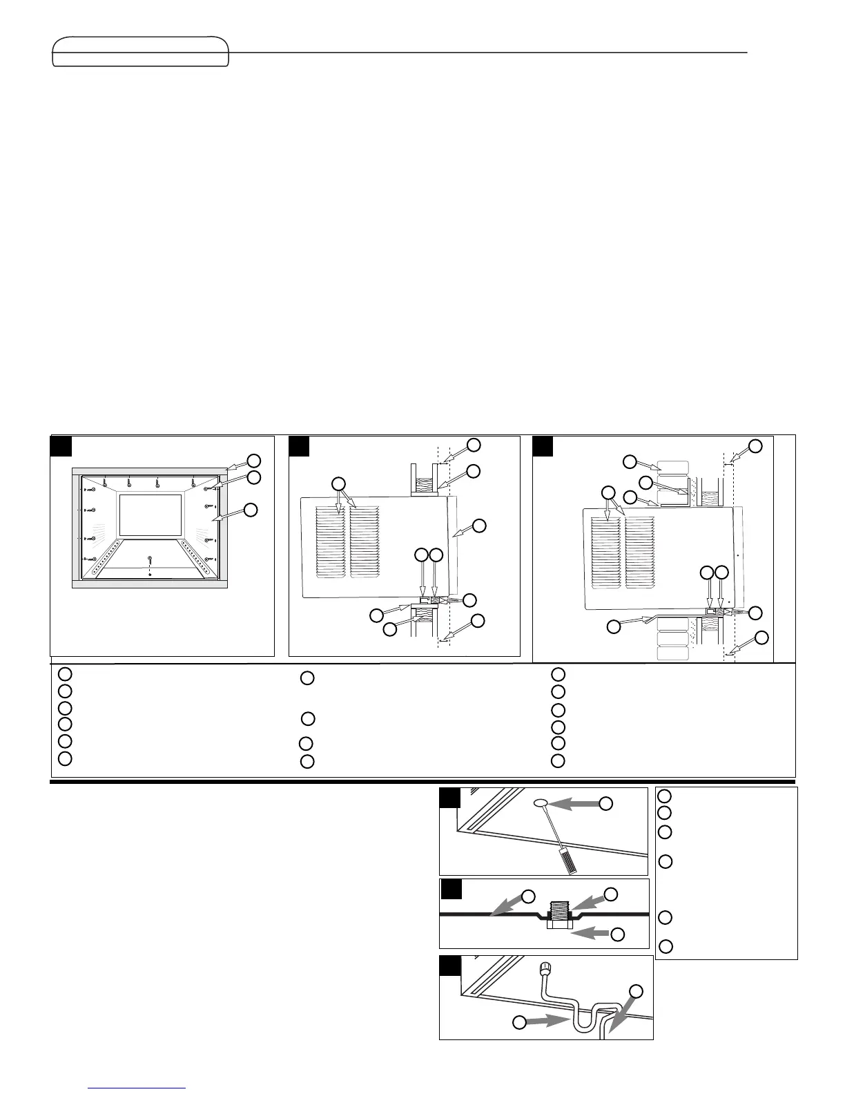
Installation à travers un mur
La conception de ce climatiseur permet son extraction hors de la caisse
par coulissement, ce qui permet l'emploi de la caisse comme gaine
murale pour l'installation à travers un mur – bâtiment existant ou
construction neuve. Nous recommandons que ce type d'installation soit
exécuté avec l'assistance d'un professionnel.
IMPORTANT : Lors de l'installation de cet appareil, on doit respecter
les prescriptions du code du bâtiment, du code des installations
électriques, et des règlements locaux en vigueur.
Pour éviter des blessures, employer les techniques de levage
appropriées, et demander la participation d'un assistant.
Il est important de vérifier le bon état du mur dans lequel le
climatiseur sera installé.
Vérifier que le mur peut soutenir le poids du climatiseur.
•Toutes les claires-voies de la caisse du climatiseur DOIVENT SE
TROUVER à l'extérieur du mur. VEILLER À NE PAS OBSTRUER LES
CLAIRES-VOIES LATÉRALES.
La caisse doit être d'aplomb latéralement, et légèrement inclinée vers
l'extérieur.
1. Enlever d'abord le panneau de façade décoratif, puis retirer le
châssis de la caisse. Ôter la tringle supérieure de la caisse.
2. Déterminer les dimensions de l'ouverture que devra former un
encadrement en bois : ajouter 3,2 mm (1/8 po) à la largeur et à la
hauteur de la caisse. Mesurer la hauteur depuis le sommet de la
caisse jusqu'à la limite inférieure de la tringle. Ajouter cette
dimension à l'épaisseur des barres en bois utilisées pour la
réalisation de l'encadrement. Ceci déterminera la taille de
l'ouverture nécessaire dans le mur. Pour la réalisation de
l'encadrement, utiliser du bois épais d'au moins 2,5 mm (1 po).
Pour déterminer la largeur finale de l'encadrement, tenir compte
du fait que les claires-voies latérales de la caisse doivent être
totalement dégagées.
3. Installer l'encadrement en bois dans l'ouverture murale; contrôler
l'aplomb et l'équerrage; fixer solidement par clous ou vis sur le
mur, et placer la caisse dans l'ouverture de l'encadrement
réalisée dans le mur.
4. Veiller à ce que la caisse dépasse en saillie à l'intérieur de la
pièce, de 3,2 cm (1-1/4 po) au sommet et de 3,8 cm (1-1/2 po)
en bas; ceci produira l'inclinaison appropriée et permettra
l'accès aux vis antivol. Fixer ensuite la caisse à l'encadrement à
l'aide de douze (12) vis à bois de 1 po (non fournies), à travers
des trous percés dans la caisse.
Si le bâtiment comporte un parement de briques, on devra utiliser une
cornière en acier pour soutenir les briques au-dessus de la caisse du
climatiseur.
5. Après l'installation de la caisse, calfeutrer toutes les ouvertures à
l'intérieur et l'extérieur entre l'encadrement en bois et la caisse,
pour empêcher l'introduction d'humidité à l'intérieur du mur.
L'emploi d'un solin (flashing) contribuera également à empêcher
l'eau de s'introduire à l'intérieur du mur.
6. Installer le châssis du climatiseur dans la caisse.
A
B
C
D
E
F
G
H
I
J
K
L
M
N
O
P
Évacuation du condensat
Une évacuation du condensat est assurée pour déverser l’excès d’eau lorsque
le climatiseur est monté au-dessus d’un encadrement de porte ou d’un trottoir.
1. À l’aide d’un levier, soulever le bouchon creux de l’évacuation du
condensat (située sur le dessous de la cuvette inférieure). Utiliser un taraud
pour tuyaux de 3/8 po et tarauder entièrement l’évacuation du condensat
(Fig. 18).
2. Visser un raccord pour tuyaux de 3/8 po dans l’évacuation du condensat.
Le raccord doit faire saillie d’environ 1/2 po au-dessus de la cuvette
inférieure lorsqu’il est vissé à fond dans l’évacuation du condensat (Fig. 19).
3. Si une source ouverte d’évacuation est utilisée pour la décharge du
condensat, un tube en plastique ou en caoutchouc peut relier directement
le raccord de tuyau à la source ouverte d’évacuation. Si une source fermée
d’évacuation (plomberie structurale interne) est utilisée, un piège en “P”
doit être placé entre le raccord pour tuyaux de 3/8 po et la source fermée
d’évacuation (Fig. 20).
Prière de consulter un importateur ou vendeur agréé pour instructions de
montage.déflecteurs réglables
18
15 16 17
19
20
C
D
E
F
A
B
C
D
E
F
Bouchon creux
Cuvette inférieure
Évacuation du
condensat
Raccord pour tuyaux de
3/8 po vissé a fond dans
l’évacuation du
condensat
À source fermée
d’évacuation
Piège en “P”
A
B

Related product manuals