EasyManua.ls Logo

Fedders AEY08F2B - Instalación Empotrado en la Pared

Fedders AEY08F2B
28 pages
Print Icon
To Next Page IconTo Next Page
To Next Page IconTo Next Page
To Previous Page IconTo Previous Page
To Previous Page IconTo Previous Page
Loading...
13
INSTALACION EMPOTRADO
EN LA PARED
INSTALACION
Instalación Empotrado en la Pared
Este acondicionador de aire ha sido diseñado como un chasis deslizable, haciendo
que sea posible su instalación empotrado en la pared, tanto en muros de
construcción antigua como moderna. Recomendamos que este tipo de instalación
sea realizado con ayuda profesional.
IMPORTANTE: Este aparato debe ser instalado de acuerdo con todos los códigos
y reglamentos eléctricos y de construcción aplicables.
Se recomienda que usted solicite ayuda para instalar el aparato y que use una
técnica de alzamiento adecuado para evitar lesión personal.
Es importante que usted inspeccione el estado de la pared donde se instalará el
acondicionador de aire.
Asegúrese de que la pared pueda soportar el peso del acondicionador de aire.
•Todas las rejillas de ventilación del gabinete DEBEN QUEDAR hacia el lado
exterior de la pared. NO BLOQUEE LAS REJILLAS DE VENTILACION
LATERALES.
El gabinete debe ser instalado de modo que quede nivelado de lado a lado y con
una ligera inclinación hacia abajo desde el interior al exterior.
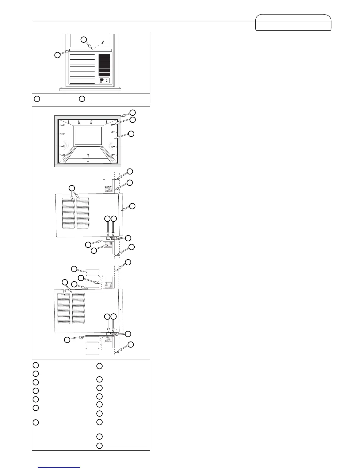
1. Retire primero el panel decorativo delantero y el chasis del gabinete. Retire
la barra superior del gabinete.
2. Determine el tamaño de la abertura para construir un marco de madera
agregando 1/8” al ancho y a la altura del gabinete. Mida la altura desde la
parte superior del gabinete hasta la barra inferior. Agregue esta medidas al
grosor de la madera usada para construir el marco. Esto determinará el
tamaño necesario de la cavidad en la pared. El marco debe construirse
usando madera de por lo menos 1” de espesor. Cuando se determine el
grosor del marco acabado, asegúrese de que este no cubra las rejillas de
ventilación laterales del gabinete.
3. Instale el marco terminado en la cavidad mural de manera que quede a
escuadra y nivelado, luego clávelo o atorníllelo firmemente en la pared e
introduzca el gabinete en la cavidad mural ya preparada con el marco.
4. Asegúrese de que el gabinete sobresalga de la pared 1-1/4” en la parte
superior y 1-1/4” en la parte inferior hacia la habitación para asegurar una
inclinación adecuada y acceso al tornillo antirrobo, luego asegure el
gabinete en el marco instalando doce (12) tornillos de madera de 1” (no
suministrados) a través de los agujeros taladrados en el gabinete y hacia el
marco.
Si el acondicionador se instala en un muro enchapado de ladrillo se debe usar
un dintel angular de acero para sostener los ladrillos que están arriba del
gabinete.
5. Una vez que se haya instalado el gabinete obture todas las aberturas en el
interior y exterior entre el marco acabado y el gabinete para evitar que la
humedad penetre al interior de la pared. El uso de un guardaaguas
(vierteaguas) ayudará también a evitar que el agua gotee dentro de la pared.
6. Instale el chasis en el gabinete.
A
J
J
K
L
M
M
M
N
O
O
P
P
E
C
D
D
B
G
H
F
I
I
A
B
C
D
E
F
G
H
I
J
K
L
M
N
O
P
Marco de madera
Tornillos de madera de 1”
Gabinete
Barra inferior
Pared
Panel decorativo
delantero
Soporte de madera de
por lo menos 1 x 6
(clavado o atornillado
en el marco de madera)
Marco de madera de
2" por todo el rededor
Espacio de 1-1/2”
Espacio de 1-1/4”
Enchapado de ladrillo
Dintel angular
Material obturador
Guardaaguas
(Vierteaguas)
Rejillas de ventilacion
relleno de madera
Barra superior Tornillo de madera de 5/8”
A
A
B
B
Instalación del Gabinete en una Ventana de
Ancho Mínimo
1. No instale los paneles de relleno en el gabinete.
2. Consulte las instrucciones anteriores desde el paso 1 al 3.
3. Cierre la ventana hasta que toque detrás de la barra superior del
acondicionador de aire.
4. Asegure la hoja móvil inferior de la ventana en el marco de la ventana.
5. Si se requiere relleno en ambos lados del acondicionador de aire, corte una
espuma de plástico del tamaño adecuado y tape ambos lados.
6. Use compuesto obturador para llenar cualquier abertura más pequeña.
7. Instale el chasis en el gabinete.
Consulte a su distribuidor autorizado o al importador para obtener instrucciones
de instalación alternativas.

Related product manuals