EasyManua.ls Logo

Felder BF 6-31 - Page 72

Felder BF 6-31
214 pages
Print Icon
To Next Page IconTo Next Page
To Next Page IconTo Next Page
To Previous Page IconTo Previous Page
To Previous Page IconTo Previous Page
Loading...
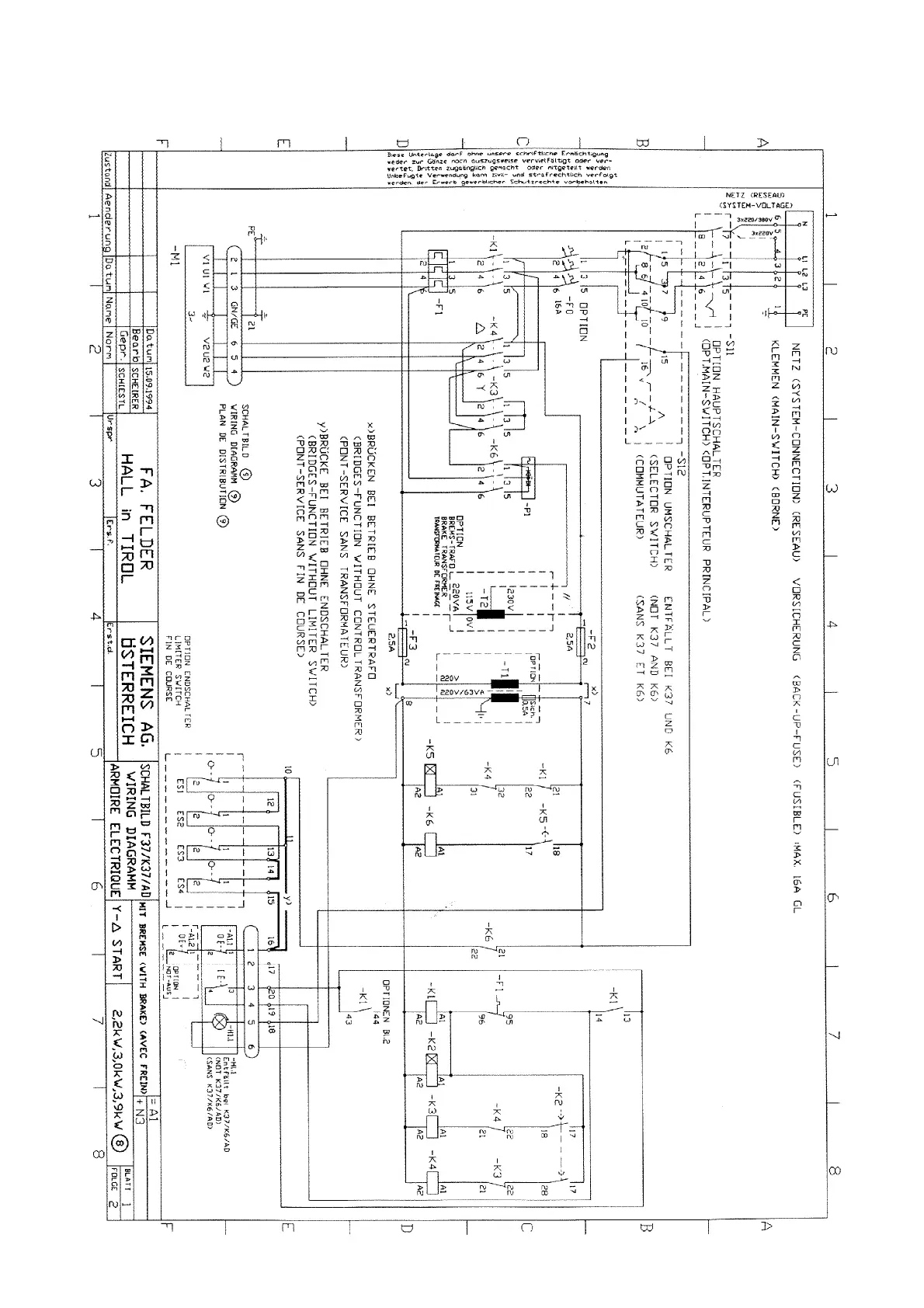
- 218 -
3x380 V oder 3x220V, 1 Motor
YD-Anlauf mit Bremse
3x380 V or 3x220V, 1 motor
YD start with brake
3x380 V ou 3x220V, 1 Moteurs
démarrage étoile-triangle
avec frein

Table of Contents

Related product manuals