EasyManua.ls Logo

FG Wilson Generating Set - 9.2 Remote Radiator; 9.3 Remote Radiator;Heat Exchanger System

FG Wilson Generating Set
33 pages
Print Icon
To Next Page IconTo Next Page
To Next Page IconTo Next Page
To Previous Page IconTo Previous Page
To Previous Page IconTo Previous Page
Loading...
11
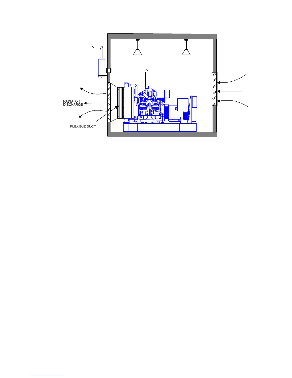
FIG 9.1 SET MOUNTED RADIATOR DISCHARGING THROUGH OUTSIDE WALL
Set mounted radiators are of two types. One type is
used with the cooling fan mounted on the engine.
The fan is belt-driven by the crankshaft pulley in a
two-point drive. The fan support bracket, fan
spindle and drive pulley are adjustable with respect
to the crankshaft pulley in order to maintain proper
belt tension. The fan blades project into the
radiator shroud, which has sufficient tip clearance
for belt tension adjustment.
The other type of set mounted radiator consists of
an assembly of radiator, fan, drive pulley and
adjustable idler pulley to maintain belt tension. The
fan is mounted with its centre fixed in a venturi
shroud with very close tip clearance for high-
efficiency performance. The fan drive pulley, idler
pulley and engine crankshaft pulley are precisely
aligned and connected in a three-point drive by the
belts. This second type of set-mounted radiator
usually uses an airfoil-bladed fan with the close-
fitting shroud.
The proper radiator and fan combinations will be
provided by FG Wilson and furnished with the
generating set. Air requirements for cooling a
particular FG Wilson generator are given in the
specification sheet. The radiator cooling air must
be relatively clean to avoid clogging the radiator
core. Adequate filtration of air flowing into the
room should assure relatively clean air. However if
the air at the site normally contains a high
concentration of dirt, lint, sawdust, or other matter,
the use of a remote radiator, located in a cleaner
environment, may alleviate a core clogging problem.
It is recommended that a set-mounted radiator's
discharge air should flow directly outdoors through
a duct that connects the radiator to an opening in
an outside wall. The engine should be located as
close to the outside wall as possible to keep the
ducting short. If the ducting is too long, it may be
more economical to use a remote radiator. The air
flow restriction of the discharge and the inlets duct
should not exceed the allowable fan static pressure.
When the set-mounted radiator is to be connected
to a discharge duct, a duct adapter should be
specified for the radiator. A length of flexible duct
material (rubber or suitable fabric) between the
radiator and the fixed discharge duct is required to
isolate vibration and provide freedom of motion
between the generating set and the fixed duct.

Related product manuals