EasyManua.ls Logo

FISCHER 4152K - Relay Repair; Replacement; Relay Disassembly

FISCHER 4152K
36 pages
Print Icon
To Next Page IconTo Next Page
To Next Page IconTo Next Page
To Previous Page IconTo Previous Page
To Previous Page IconTo Previous Page
Loading...
4150K and 4160K Series
24
Figure 16. Direct/Reverse Acting Tubing Connections (Continued)
PROPORTIONAL
TUBING (KEY 104)
RELAY TUBING (KEY 103)
REVERSING
BLOCK (KEY 59)
DIRECT
ACTING
POSITION
BEAM (KEY 44)
REVERSE
ACTING
POSITION
REVERSING
BLOCK
(KEY 59)
REVERSE
POSITION
 
NOTES:
P = POPORTIONAL
BELLOWS
X = NO PRESSURE

B2671 / IL
Relay Repair
Replacement
Key numbers used in this procedure are shown in fig-
ure 19 or 20 except where indicated.
1. Shut off the supply pressure and process pressure
line(s) to the controller or transmitter.
2. Disconnect the tubing (key 103) from the relay.
3. Unscrew the output or supply pressure gauge (key
13).
4. To remove the relay assembly, unscrew two Phil-
lips-head machine screws (key 81, not shown) located
behind the relay on the back of the case.
5. Remove the relay gasket (key 7, figure 19).
6. The relay can now be disassembled for cleaning or
parts replacement, or a new relay can be installed as a
replacement. Refer to the instructions below for relay
disassembly. If a new relay is being installed, continue
with the next step.
7. Attach the replacement relay and new relay gasket
with machine screws inserted through the back of the
case. Reinstall the output or supply gauge.
8. Connect the tubing, and check all connections for
leaks. Perform the appropriate calibration procedures.
Relay Disassembly
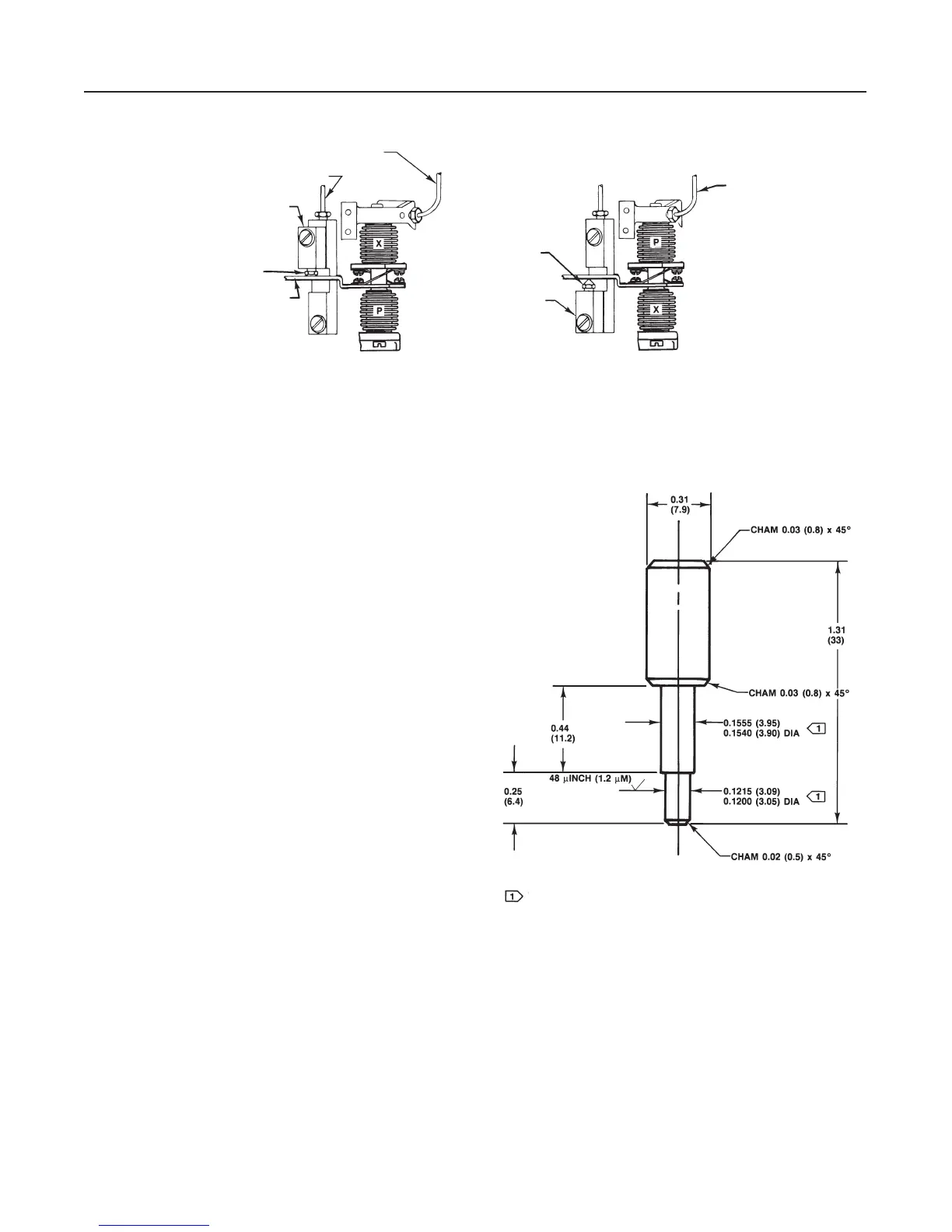
Although the alignment tool shown in figure 17 is not
required for assembly of the relay, using the tool will
prevent excessive air consumption and dead band. If
low air consumption and minimum dead band are re-
quired, make or purchase the alignment tool before
Figure 17. Relay Alignment Tool
(Part Number 15A3519 X012)
15A3519-B
A5871 / IL
NOTE:
THESE DIAMETERS MUST BE CONCENTRIC
WITHIN 0.001 (0.025)
INCH
(mm)
disassembling the relay. Key numbers are shown in
figure 23.
1. Remove the relay from the controller or transmitter
case by following steps 1 through 5 of the relay re-
placement procedure.
2. Unscrew the orifice assembly (key 88). Remove
the O-ring (key 90) from the orifice assembly.

Table of Contents

Related product manuals