EasyManua.ls Logo

Flagro FVNP-400 - Burner Dimensions

Flagro FVNP-400
25 pages
Print Icon
To Next Page IconTo Next Page
To Next Page IconTo Next Page
To Previous Page IconTo Previous Page
To Previous Page IconTo Previous Page
Loading...
- 14 -
In extreme cold conditions, cover the holes on the temperature feeler gauge
using foil tape. Ensure that the temperature feeler gauge is readjusted for
warmer weather conditions. Failure to do so may result in burning out fan
switches – not covered under warranty.
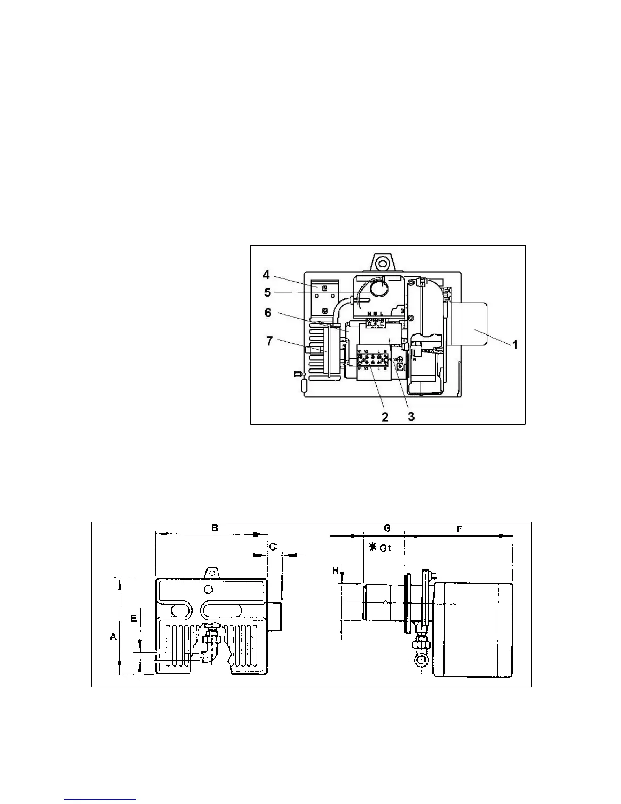
PRINCIPAL BURNER COMPONENTS
1. Air Damper (Optional Delete)
2. Air Gate Lock-screws
3. Wiring Terminal Block
4. Air Pressure Switch
5. Motor
6. Lockout Lamps and Reset
Button
7. Cover Screw
8. Rubber Grommet
9. Capacitor
BURNER DIMENSIONS

Related product manuals