EasyManua.ls Logo

FPI U31-NG2 - Shutdown Procedure; First Fire and Fan Operation

Default Icon
37 pages
Print Icon
To Next Page IconTo Next Page
To Next Page IconTo Next Page
To Previous Page IconTo Previous Page
To Previous Page IconTo Previous Page
Loading...
24
FPI U31-2 Gas Fireplace Insert
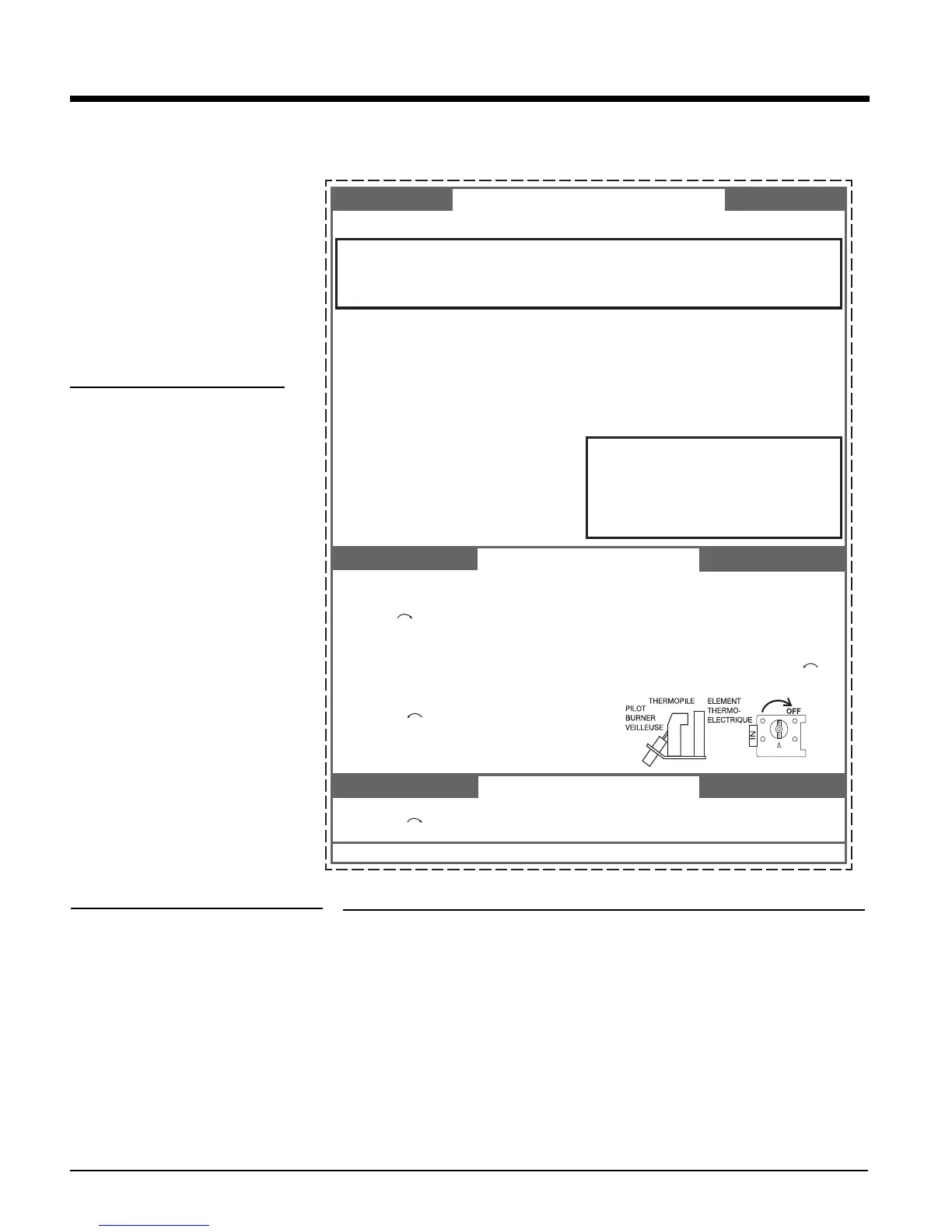
COPY OF LIGHTING INSTRUCTION PLATE
OPERATING INSTRUCTIONS
SHUTDOWN
PROCEDURE
1) Use the rocker switch to turn off the
main burner.
2) Open the bottom louver assembly.
3) Push in the gas control knob slightly
and turn clockwise to "OFF". Do not
force.
4) Disconnect all electric power and
gas to the appliance if service is to
be performed.
FIRST FIRE
The rst re in your stove is part of the
paint curing process. To ensure that the
paint is properly cured, it is recommended
that you burn your replace for at least
four (4) hours the rst time you use it with
the fan on. When rst operated, the unit
will release an odour caused by the curing
of the paint, the burning off of any oils
remaining from manufacturing. Smoke
detectors in the house may go off at this
time. Open a few windows to ventilate
the room for a couple of hours.
The glass panel may require cleaning
after the unit has cooled down.
DO NOT ATTEMPT TO CLEAN THE
GLASS WHILE IT IS HOT.
Note: When the glass is cold and
the appliance is lit, it may
cause condensation and fog
the glass. This condensation
is normal and will disappear
in a few minutes as the glass
heats up.
DO NOT BURN THE APPLI-
ANCE WITHOUT THE GLASS
FRONT IN PLACE.
NORMAL OPERATING SOUNDS OF
GAS APPLIANCES
when ON. This sound will increase or decrease
in volume depending on the speed setting of
your fan speed control.
Burner Tray:
The burner tray is positioned directly under the
burner tube(s) and logs and is made of a differ-
ent gauge material from the rest of the rebox
and body. Therefore, the varying thicknesses of
steel will expand and contract at slightly different
rates which can cause "ticking" and "cracking"
sounds. You should also be aware that as there
AUTOMATIC
CONVECTION
FAN OPERATION
The fan operates automatically, turn the knob
on the side of the faceplate to adjust to the
desired speed. The fan will turn on as the stove
comes up to operating temperature. After the
unit has been turned off and the unit cooled to
below a useful heat output range the fan will
shut off automatically.
It is possible that you will hear some sounds
from your gas appliance. This is perfectly normal
due to the fact that there are various gauges
and types of steel used within your appliance.
Listed below are some examples. All are normal
operating sounds and should not be consid-
ered as defects in your appliance.
Blower:
FPI gas appliances use high tech blowers to
push heated air farther into the room. It is not
unusual for the fan to make a "whirring" sound
FOR YOUR SAFETY READ BEFORE LIGHTING
DO NOT REMOVE THIS INSTRUCTION PLATE
LIGHTING INSTRUCTIONS
TO TURN OFF GAS APPLIANCE
1) Push in the gas control knob slightly and turn
clockwise to “OFF”. Do not force.
WARNING: If you do not follow these instructions exactly, a fire or explosion may result causing property
damage, personal injury or loss of life. Improper installation, adjustment, alteration, service or
maintenance can cause injury or property damage. Refer to the owner’s information manual provided
with this appliance. For assistance or additional information consult a qualified installer, service agency
or gas supplier.
Release knob and it will pop back up. Pilot should
remain lit. If it goes out, repeat steps 3) and 4). If
knob does not pop up when released, stop and
immediately call your service technician or gas
supplier. If the pilot will not stay lit after several
tries, turn the gas control knob to “OFF” and call
your service technician or gas supplier.
5) Turn gas control knob counterclockwise to
“ON”.
6) Use rocker switch to operate main burner.
This appliance must be installed in accordance with local codes, if any; if none, follow the National Fuel Gas Code, ANSI
Z223.1/NFPA 54, or Natural Gas and Propane Installations Codes, CSA B149.1. (Australia: AG 601/ New Zealand: NZS 5261)
2) Turn off all electric power to the appliance if
service is to be performed.
a qualified service technician. Force or attempted
repair may result in a fire or explosion.
D) Do not use this appliance if any part has been
under water. Immediately call a qualified service
technician to inspect the appliance and to replace
any part of the control system and any gas control
which has been under water.
908-401b
STOP! Read the safety information above on this
label.
1) Push in gas control knob slightly and turn
clockwise to “OFF”. Knob cannot be turned
from “PILOT” to “OFF” unless knob is pushed in
slightly. Do not force.
2) Wait five (5) minutes to clear out any gas. If you
then smell gas STOP! follow “B” in the safety
information above on this label. If you do not
smell gas, go to the next step.
3) Turn knob on gas control counterclockwise
to “PILOT” .
4) Push in control knob all the way and hold in.
Immediately push black button on spark igniter
until pilot lights. Continue to hold the control
knob in for about 1/2 minute after the pilot is lit.
A) This appliance has a pilot which must be lighted
by hand, following the instructions below
exactly.
B) BEFORE LIGHTING smell all around the appliance
area for gas. Be sure to smell next to the floor
because some gas is heavier than air and will
settle on the floor.
WHAT TO DO IF YOU SMELL GAS:
- Do not try to light any appliance.
- Do not touch any electric switch, do not use any
phone in your building.
-Immediately call your gas supplier from a
neighbors phone. Follow the gas supplier’s
instructions.
- If you cannot reach your gas supplier, call the
fire department.
C) Use only your hand to push in or turn the gas
control knob. Never use tools. If the knob will not
push in or turn by hand, do not try to repair it, call
This appliance needs fresh air for safe operation and
must be installed so there are provisions for
adequate combustion and ventilation air.
CAUTION: Hot while in operation. Do not touch.
Severe Burns may result. Due to high surface
temperatures keep children, clothing and furniture,
gasoline and other liquids having flammable vapors
away. Keep burner and control compartment clean.
See installation and operating instructions
accompanying appliance.
You may shut off the pilot during prolonged non use periods to conserve fuel.

Related product manuals