EasyManua.ls Logo

Freeflow Spas Solstice - Page 6

Default Icon
16 pages
Print Icon
To Next Page IconTo Next Page
To Next Page IconTo Next Page
To Previous Page IconTo Previous Page
To Previous Page IconTo Previous Page
Loading...
Accent
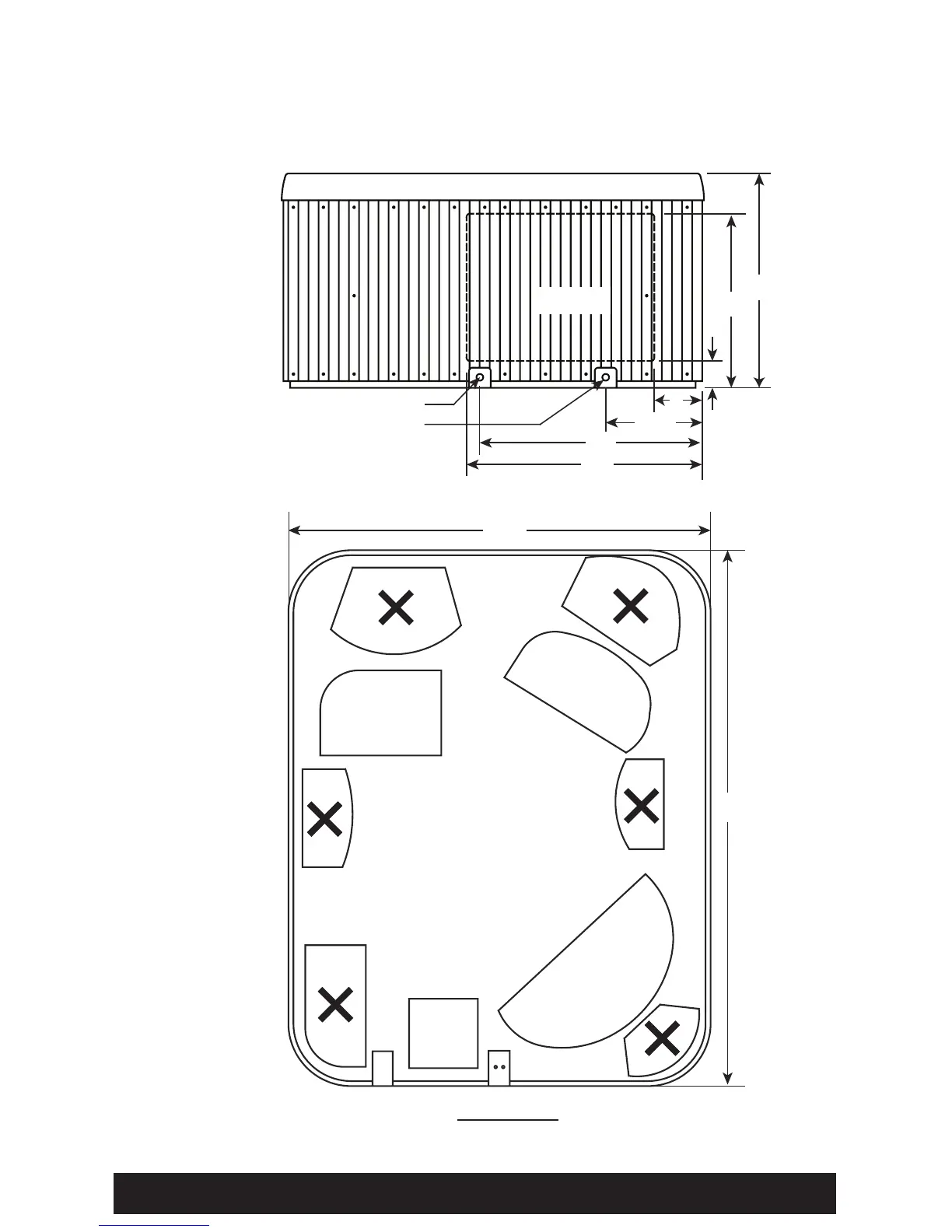
33”
25”
3”
10”
15.5”
33”
36”
5’3”
6’9”
Accent & Azure
Dimensions
NOTE: All dimensions are approximate; measure your spa
before making critical design or pathway decisions.
(Front view)
(Bottom view)
x Page x xPre-Delivery Instructions Page 6
DRAIN
ELECTRICAL
DOOR SIDE
UPSIDE DOWN VIEW OF SPA
DOOR

Related product manuals