EasyManua.ls Logo

Friedrich KHL24A35A - Component Testing Procedures; Capillary Tube and Check Valve Assy (Heat Pump Units)

Friedrich KHL24A35A
91 pages
Print Icon
To Next Page IconTo Next Page
To Next Page IconTo Next Page
To Previous Page IconTo Previous Page
To Previous Page IconTo Previous Page
Loading...
53 PB
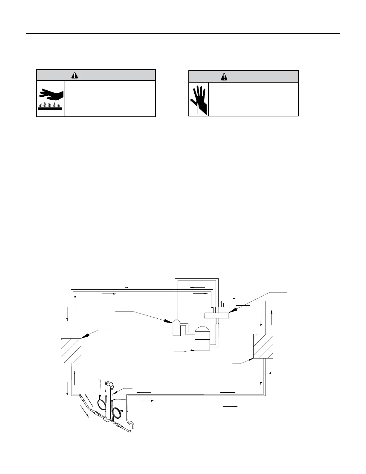
CHECK VALVE OPERATION
Check Valves
2 check valves are installed on Heat pump units. They are pressure operated and used to direct the ow of refrigerant to the
proper capillary tube during either the heating or cooling cycle.
COOLING MODE
In the cooling mode of operation, high pressure liquid enters the check valve forcing the slide to close the opposite port (liquid
line) to the indoor coil. Refer to gure 701a. This directs the refrigerant through the cooling capillary tube to the indoor coil.
HEATING MODE
In the heating mode of operation, high pressure refrigerant enters the check valve from the opposite direction, closing the port
(liquid line) to the outdoor coil. The ow path of the refrigerant is then through the heating capillary to the outdoor coil.
Failure of the slide in the check valve to seat properly in either mode of operation will cause ooding of the cooling coil. This is
due to the refrigerant bypassing the heating or cooling capillary tube and entering the liquid line.
Test the Capillary Tube and Check Valve Assy
Allow unit to run for ten minutes before checking temps in order for unit to stabilize. Units tested at low ambient temps may
frost momentarily, but will retun to normal once unit pressure stabilizes. If frost does not stop after 10 minutes then a possible
restricition or low refrigerant charge may be present.
1. Check the capillary tube temperature by hand where the refrigerant enters the capillary tube. A partial restriction of
the capillary tube will be indicated by frost or freezing in that area.
2. If check valve fails closed or the capillary tube is fully restricted, then pressure will increase and pressure switch will
open if installed. If no pressure switch is installed, the unit will shut down due to the compressor overload opening.High
discharge temperature will be present at the compressor.
3. If check valve fails open the unit will continue to run, but there will be little to no cooling or heating.
In normal operation, the tube will be cooler on the side where the coolant is entering the cap tube then where it exits. If
the check valve is stuck open, there will be little difference in temperature.
COMPONENT TESTING
Capillary Tube and Check Valve Assy (Heat Pump Units)
BURN HAZARD
Proper safety procedures must be followed,
and proper protective clothing must be worn
when working with a torch.
Failure to follow these procedures could
result in moderate or serious injury.
WARNING
WARNING
CUT/SEVER HAZARD
Be careful with the sharp edges and corners.
Wear protective clothing and gloves, etc.
Failure to do so could result in serious injury.
Indoor
Coil
(Evaporator)
Accumulator
Compressor
Outdoor Coil
(Condensor)
Reversing Valve
Cap Tube
(Heating)
Cap Tube Cooling
Check Valve
Arrows Indicate Direction of Flow in Cooling Mode
Arrows Indicate Direction of Flow in Heating Mode
Figure 701a (Heat Pump Regerant Flow)

Table of Contents

Related product manuals