EasyManua.ls Logo

Frigidaire 27” - Dimensiones para la Instalación

Frigidaire 27”
20 pages
Print Icon
To Next Page IconTo Next Page
To Next Page IconTo Next Page
To Previous Page IconTo Previous Page
To Previous Page IconTo Previous Page
Loading...
16
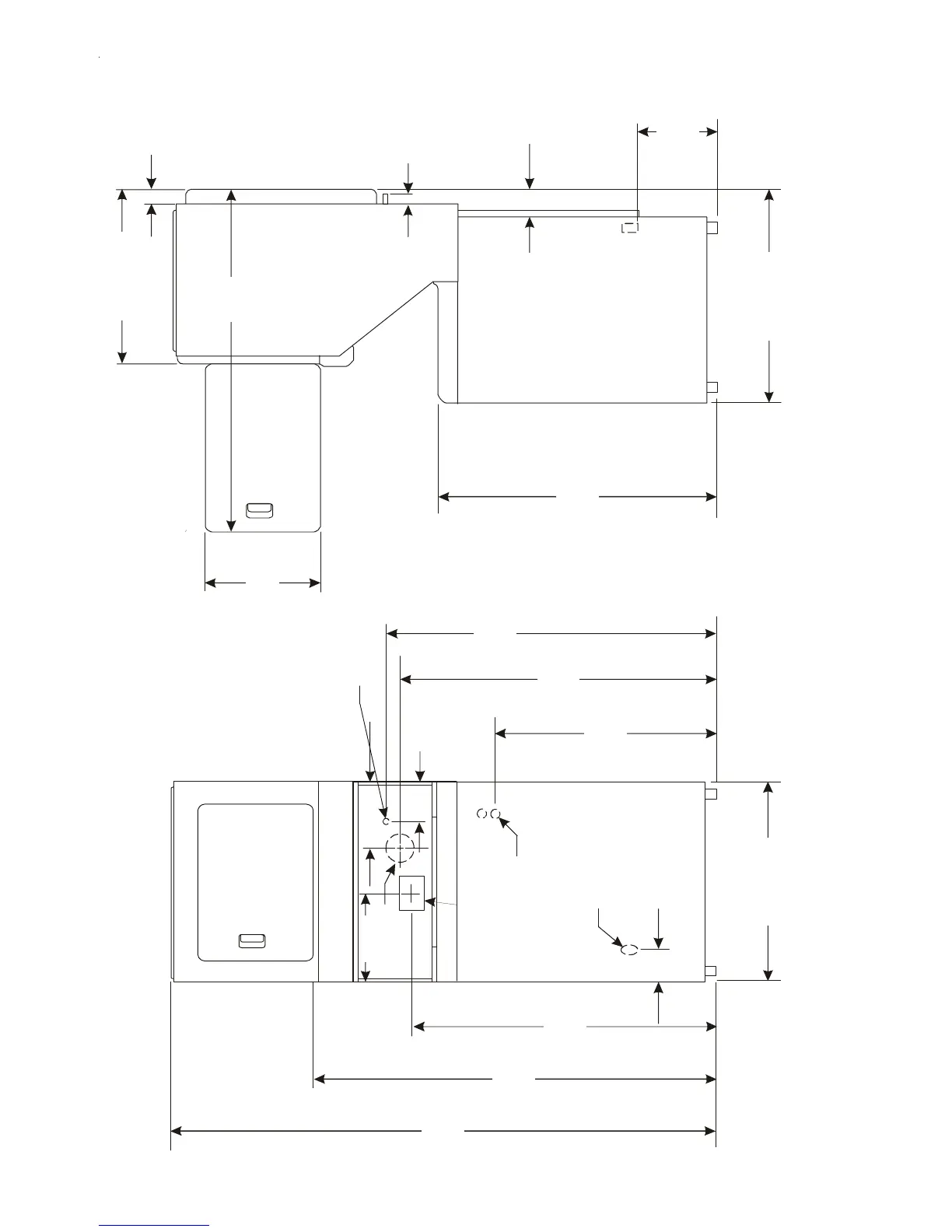
DIMENSIONES PARA LA INSTALACION
25 ¼ IN.
(64.13 CM)
3 ¾ IN.
(9.52 CM)
4 13/16 IN.
(12.22 CM)
9 3/8 IN.
(23.81 CM)
2 ½ IN.
(6.35 CM)
47“
16 ¼ IN.
(41.27 CM)
36 1/16IN.
(91.60 CM)
30 13/16 IN.
(78.26 CM)
11 7/16 IN.
(29.5 CM)
41 ¼ IN
(104.77 CM)
29 7/16 IN
(74.77 CM)
27 IN.
(68.58CM)
DRAIN OUTLET
(REAR)
WATER INLETS
(REAR)
VENT
1 7/8 IN.
(4.76 CM)
5 ¼ IN.
(13.33 CM)
GAS SUPPLY
PIPE (REAR)
43 IN.
(109.22 CM)
54 5/16 IN.
(137.95 CM)
75 ½ IN.
(191.77 CM)
43 IN.
(109.22 CM)
ELECTRICAL
CONNECTION
12 ½ IN.
(31.75 CM)
LINA DE ALIMENTATION
DE GAS (ATRAS)
CONEXIÓNES
ELÉCTRICAS
ENTRADAS DE
AGUA (ATRAS)
SALIDA AL
DRENAJE
(ATRAS)

Related product manuals