EasyManua.ls Logo

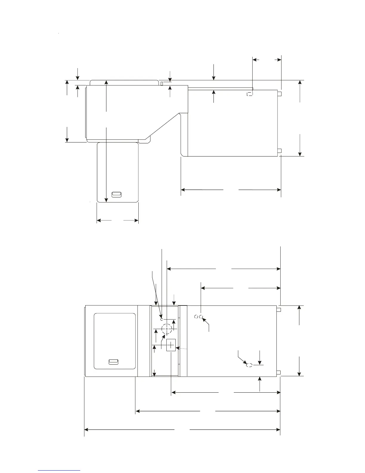
Frigidaire 27” - Rough-Ln Dimensions

Frigidaire 27”
20 pages
Print Icon
To Next Page IconTo Next Page
To Next Page IconTo Next Page
To Previous Page IconTo Previous Page
To Previous Page IconTo Previous Page
Loading...
25 ¼ IN.
(64.13 CM)
4 13/16 IN.
(12.22 CM)
2 ½ IN.
(6.35 CM)
47“
16 ¼ IN.
(41.27 CM)
36 1/16IN.
(91.60 CM)
30 13/16 IN.
(78.26 CM)
11 7/16 IN.
(29.5 CM)
1 7/8 IN.
(4.76 CM)
3 ¾ IN.
(9.52 CM)
9 3/8 IN.
(23.81 CM)
41 ¼ IN
(104.77 CM)
29 7/16 IN
(74.77 CM)
27 IN.
(68.58CM)
DRAIN OUTLET
(REAR)
WATER INLETS
(REAR)
VENT
5 ¼ IN.
(13.33 CM)
GAS SUPPLY
PIPE (REAR)
43 IN.
(109.22 CM)
54 5/16 IN.
(137.95 CM)
75 ½ IN.
(191.77 CM)
43 IN.
(109.22 CM)
ELECTRICAL
CONNECTION
12 ½ IN.
(31.75 CM)
ROUGH-IN DIMENSIONS

Related product manuals