EasyManua.ls Logo

Frigidaire FAA085P7A-C - MED Electronic with Ionizer Wiring Diagram 202021990044

Frigidaire FAA085P7A-C
71 pages
Print Icon
To Next Page IconTo Next Page
To Next Page IconTo Next Page
To Previous Page IconTo Previous Page
To Previous Page IconTo Previous Page
Loading...
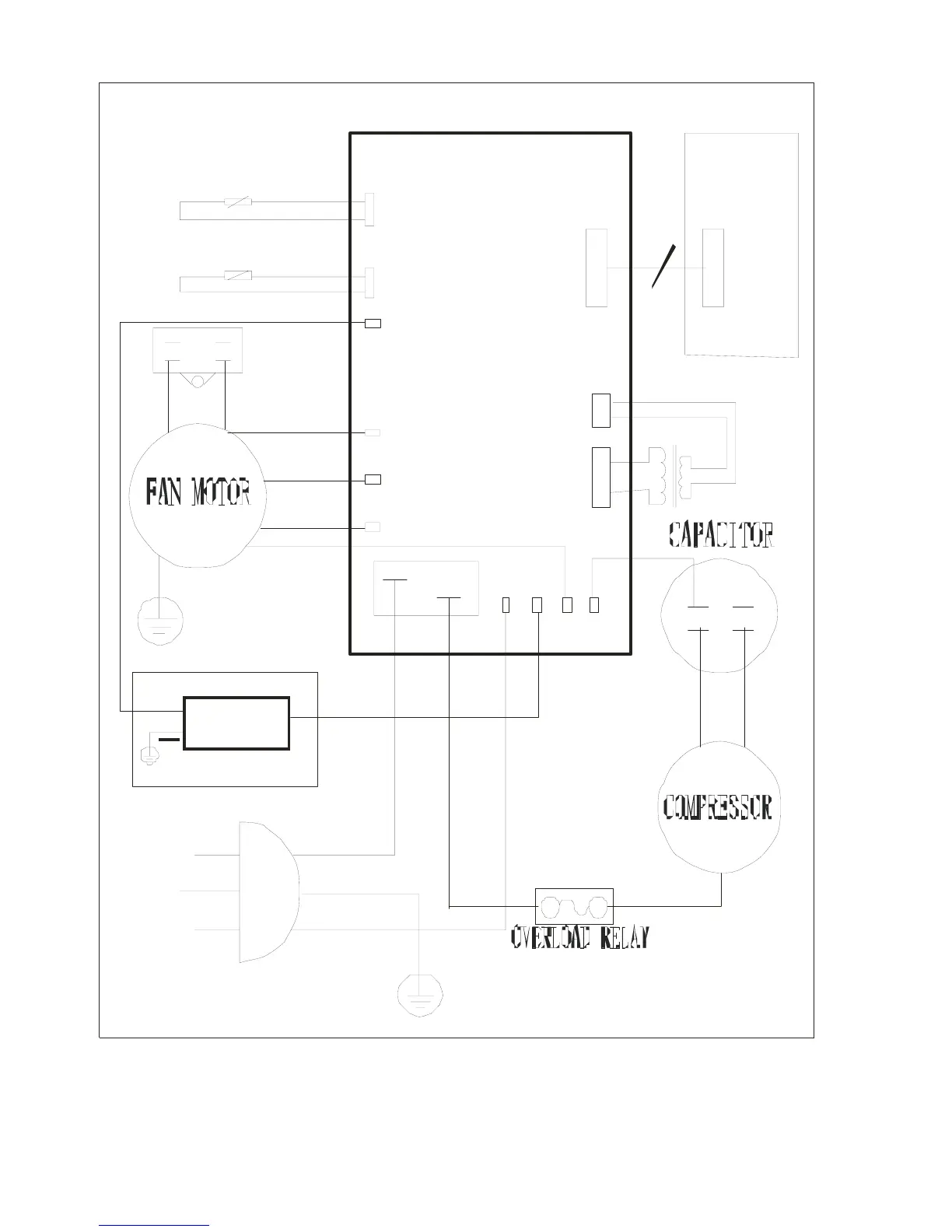
MED Electronic with Ionizer --- 202021990044
3
P4
CN1
CN3
BLUE
BROWN
4
EVAPORATOR SENSOR
AMBIENT SENSOR
P2
P3
RED
WHITE
YELLOW
POWER
CN1
DIS
PLAY BOARD
TRANSFORMER
C1
BL UE
BLACK
RED
GREEN
BLACK
P7
P8
P9
BLACK
WHITE
CN4
CN6
CN5
CONTROL BOARD
BLUE
RY7
P5
P11
ION
RED
BLACK
43

Table of Contents

Related product manuals