EasyManua.ls Logo

Frigidaire FEB27S5DB - Instalación del Gabinete

Frigidaire FEB27S5DB
29 pages
Print Icon
To Next Page IconTo Next Page
To Next Page IconTo Next Page
To Previous Page IconTo Previous Page
To Previous Page IconTo Previous Page
Loading...
15
INSTRUCCIONES DE INSTALACIÓN PARA EL HORNO ELECTRICO DE PARED
(Combinado con una cocina electrica o de gas facultativa)
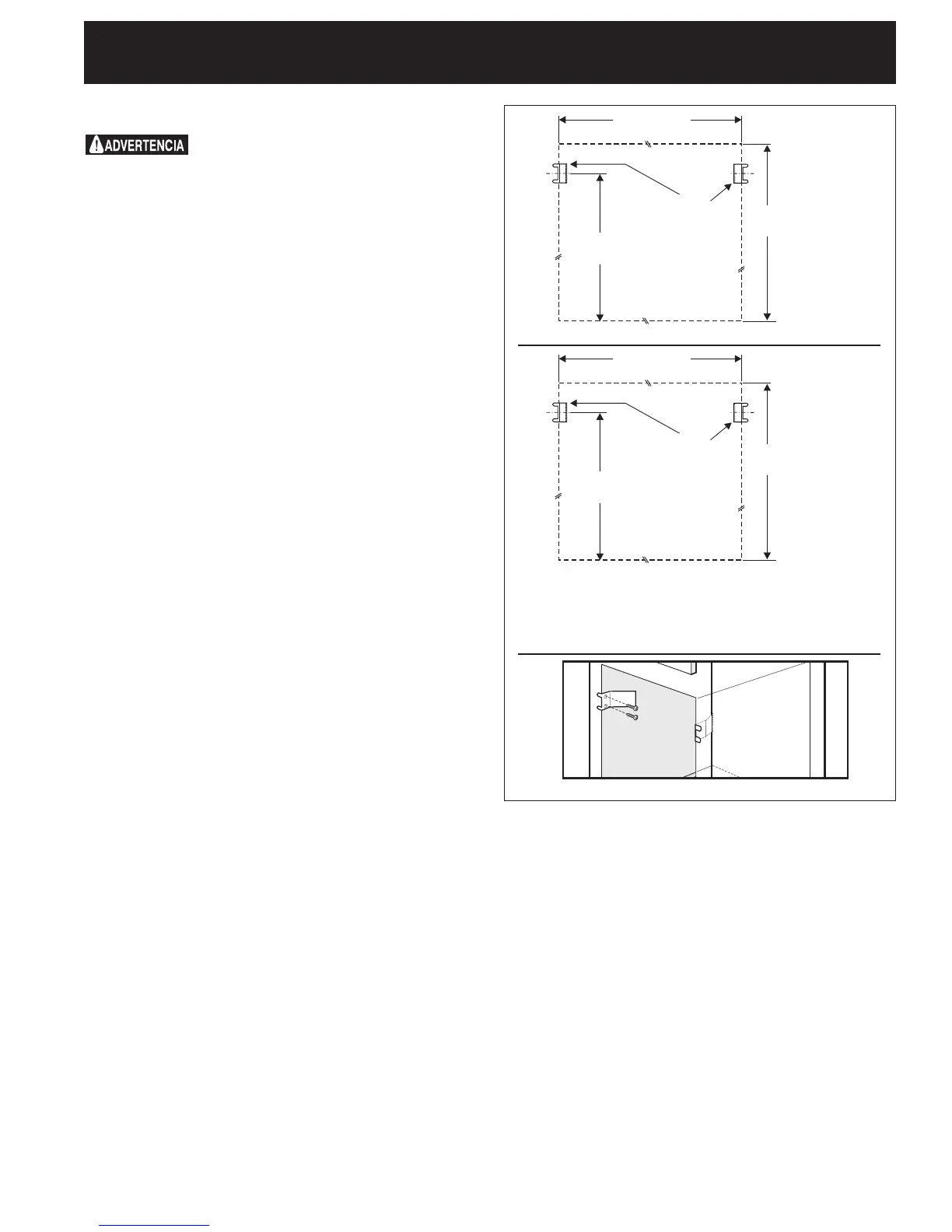
Figura 5
Soportes de
montaje
43 5/8" *
(110.8 cm)
H
vea figure 2
F vea figura 2
Horno de pared doble
Soportes de
montaje
22 3/16" *
(56.4 cm)
H
vea figura 1
F vea figura 1
Horno de pared simple
* Si hay instaladas cuñas de madera, calcular esta
dimensión desde la parte superior de la cuña hasta el
medio del soporte de montaje.
5. Instalación del Gabinete
El horno de pared puede inclinarse
cuando la puerta esta abierta. Los soportes de
montaje que vienen con el horno de pared deben
de estar ajustadas al armario y al aparato para
evitar que el horno de pared se incline y ocasione
quemaduras graves.
Instrucciones de instalación de los soportes de
montaje
1. Desembalar el horno de pared. Extraer la guarnición
inferior y los 2 tornillos unidos con cinta al panel
lateral del horno. Buscar las dos soportes de montaje y
los tornillos que se incluyen en el paquete de
literatura.
2. Instale los soportes de montaje como en la figura 5. Nota:
Para prevenir cualquier tipo de daño al cabinete es
recomendable perforar agujeros conn un diametro de
1/16" (0,16cm) antes de instalar los soportes de
montaje.

Related product manuals