EasyManua.ls Logo

Frigidaire FEB500CEBI - Wiring Diagram

Frigidaire FEB500CEBI
8 pages
Print Icon
To Previous Page IconTo Previous Page
To Previous Page IconTo Previous Page
Loading...
Pub li ca tion No. FEB500CE
5995322988
05/99 8
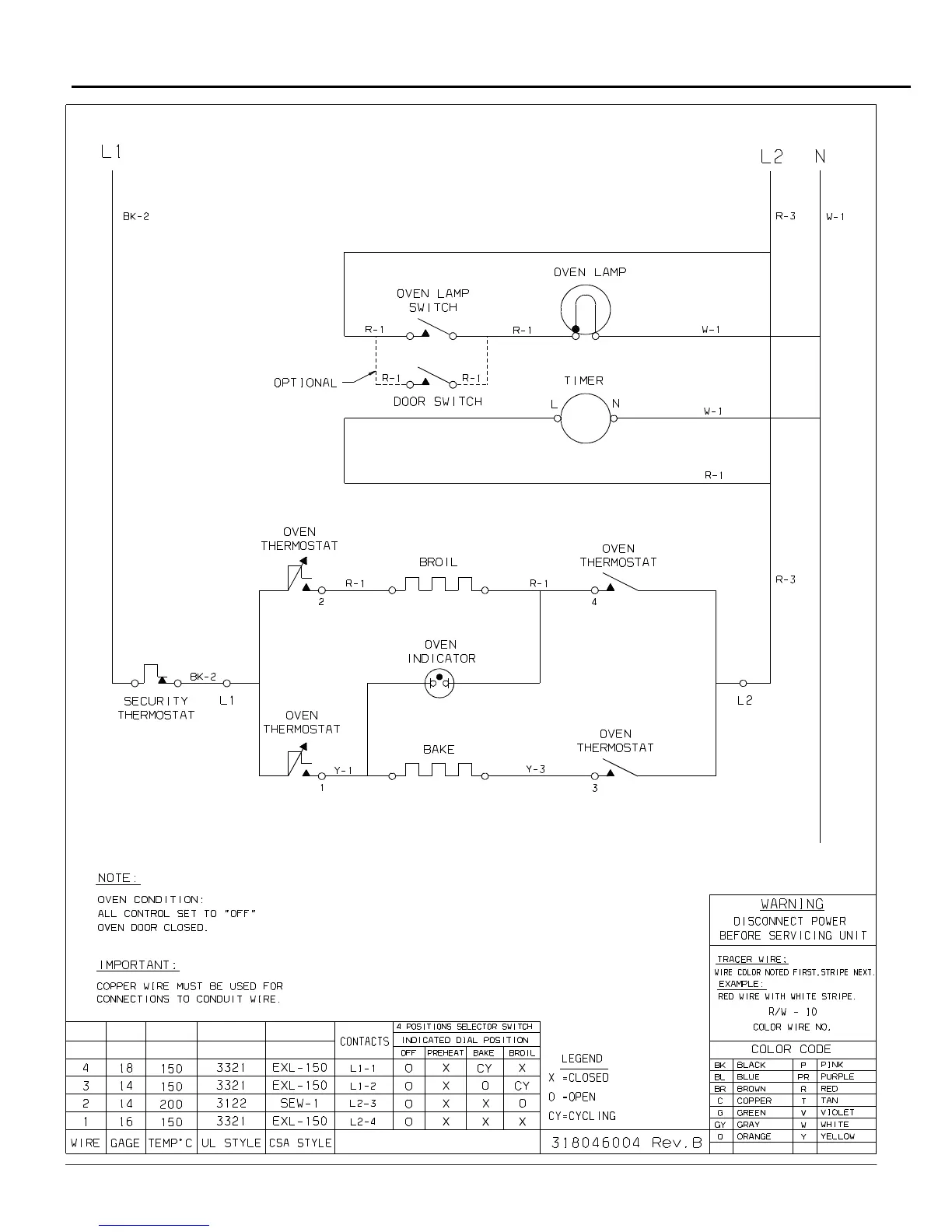
WIRING DIAGRAM

Related product manuals