EasyManua.ls Logo

Frigidaire FGB24L2ECD - Page 19

Frigidaire FGB24L2ECD
20 pages
Print Icon
To Next Page IconTo Next Page
To Next Page IconTo Next Page
To Previous Page IconTo Previous Page
To Previous Page IconTo Previous Page
Loading...
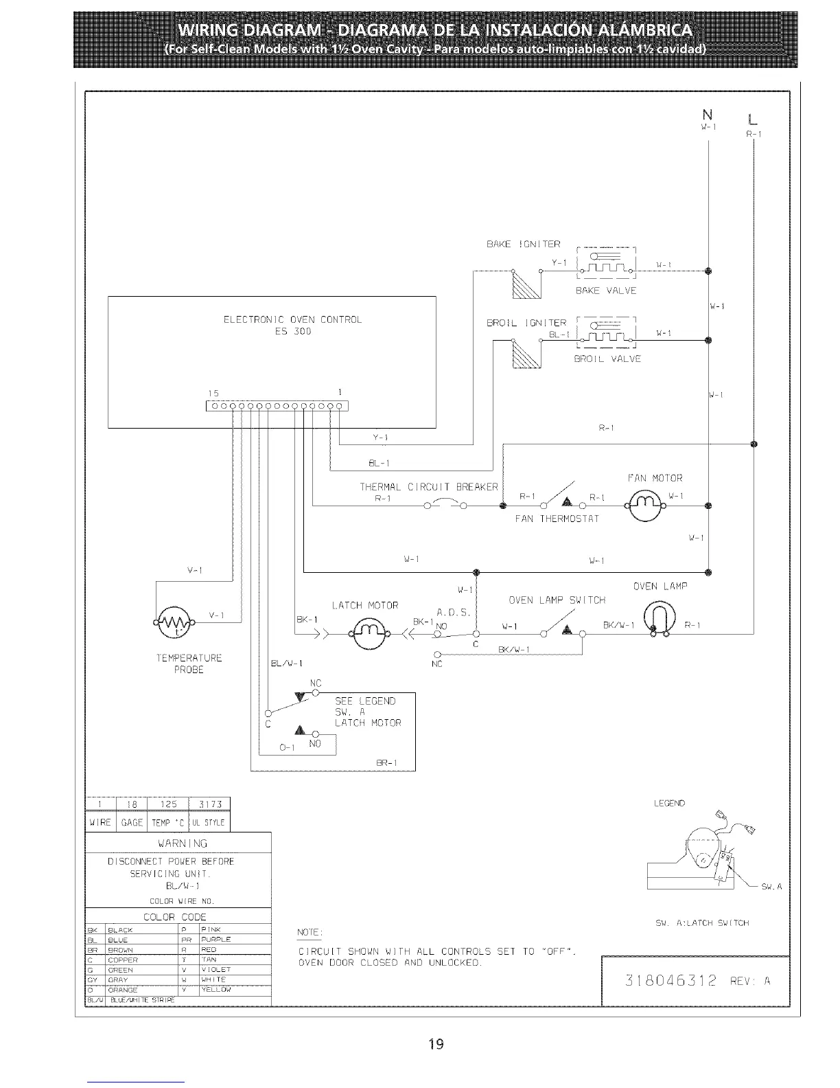
N L
BAKE IGNITER
Y1
1EMPERAFURE
PROBE
ELECTRON]C OVEN CONTROL
ES 300
Y
BRBIL IGNITER
BL- I
THERMAL CIRCU]T BREAKER
i
o
NC
SEE LEGEND
SW A
C [ATCI MOTOR
BR I
X I
J
BAKE VALVE
]
BL I _4 1
I
BRB]L VALVE
R-I
FAN MOIOR
J
FAN THERMOS rAT '_J
w I
_J--1
d
OVEN LAMP
OVEN LAMP SW[TCH
w I BK/W _ _ R I
BK/W I
LEGEND
WARN[NG
D SCONNECT PO_4ER BEFORE
SERV[C NO UNT
BL/_4
COLOR WIRE NO
COLOR COD
BK BLACK P P INK
BL BLUE PR PURPLE
BR BROWN R RED
COPPER T [AN
GREEN v I OLET
GY GRAY WH I TE
O ORANGE Y YELLOW4
B[/_; BLUE/WH]TE STRIPE
NOFE:
CIRCUIT SHOWN _]TH ALL CONTROLS SET TO "OFF"
OVEN DOOR CLOSES AND UNLOCKED
I
S_ A
SW A: A]CH SV[]CH
._ I 80463 1 2 REV: A
19

Related product manuals