EasyManua.ls Logo

Frigidaire FGFL67D - Wiring Diagram and Color Code

Frigidaire FGFL67D
13 pages
Print Icon
To Previous Page IconTo Previous Page
To Previous Page IconTo Previous Page
Loading...
FGFL67D Publication No: 5995419917
# Functional Parts
13 10/04
* Non-Illustrated Parts
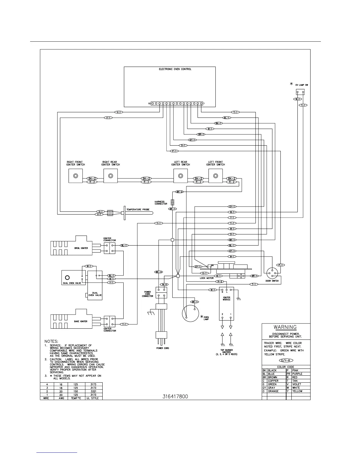
WIRING DIAGRAM

Related product manuals